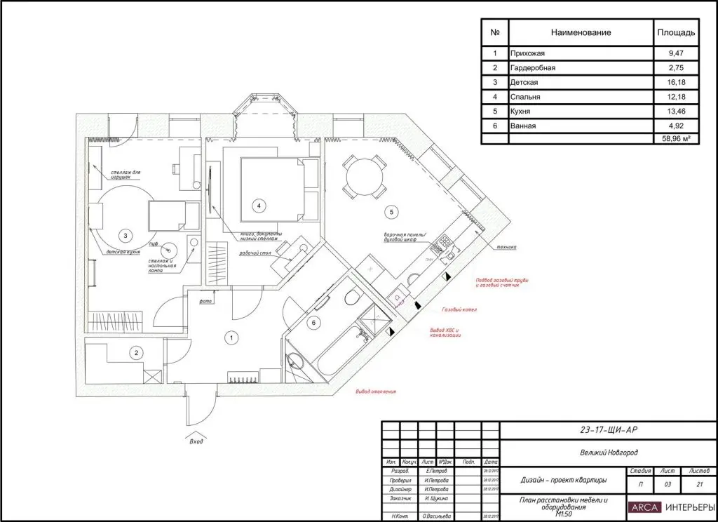
Proiectul de amenajare pe care ti-l propunem astazi este despre compromisuri si solutii functionale. Vorbim despre un apartament de 60 metri patrati amenajat pentru o mama si fetita ei.
Deschide GaleriaIrina le-a fost alaturi pentru a intocmi proiectul pe masura nevoilor si a bugetului. Una din schimbarile majore a fost aceea de a renunta la living pentru a o transforma in camera fetitei. Practic, intreaga zona de zi s-a mutat in perimetrul bucatariei. Avem astfel doua dormitoare, cel al fetitei fiind mai spatios.
Propunerile designer-ului s-au concentrat pe a obtine spatii functionale pentru fiecare zona in parte, de la bucatarie pana la baie. Amenajarea urmeaza o linie scandinava, in care culorile si imprimeurile aduc veselie si dinamism.
S-a pornit de la o baza neutra pentru a pastra spatiile cat mai luminoase, la care s-au adaugat tusele de culoare prin modele diferite de tapet ce formeaza zone-accent in camerele respective, chiar si in hol.
Mobilarea este simpla, cu accent pe a asigura nevoile celor doua beneficiare. In hol exista amenajat un dressing de aproximativ 2 metri patrati care preia o parte din lucrurile mai voluminoase, iar in cele doua camere au fost integrate piesele pe masura nevoilor mamei si a fetitei.
In camera copilului, nu s-a exagerat cu mobilarea, pe masura ce fetita va creste, urmand sa se modifice si o parte din piesele existente. S-au folosit corpuri mici, ce permit organizarea cu ajutorul cutiilor si cosurilor; pretul redus a fost criteriul principal dupa care s-a facut aceasta alegere.
Camera fetitei atrage privirea printr-un intreg perete cu tapet vesel, completat de patul cu baldachin desprins din povestile cu zane. Amenajarea camerei este simpla, fara corpuri de mobilier care sa agreseze spatiul, exceptie fiind dulapul de haine de langa usa camerei.
Bucataria este spatiul comun al acestei familii restranse. Gatind sau luand masa impreuna, spatiul capata valentele unei zone de zi. Suprafata de 13 metri patrati si deschiderea spre hol sprijina aceasta reconfigurare. Amenajarea este gandita aici pe doua zone: cea tehnica, destinata gatitului si cea pentru luat masa.
Dispunerea pe doua laturi asigura spatiile de depozitare si incorporarea electrocasnicelor, chiar daca una din laturi este mai redusa (cea cu frigiderul). Tonurile de verde de la nivelul scaunelor si draperiilor se integreaza minunat in contextul decorativ al acestei bucatarii.
O astfel de solutie se poate dovedi utila si pentru reamenajarea locuintei tale. Consulta un specialist si analizeaza toate aspectele inainte de orice modificare majora pe care ti-o doresti in casa!
Designer: Irina Petrova































