Cand am primit proiectul acestei case, prin amabilitatea echipei de arhitecti si designeri de la Geometrium, am stiut imediat ca avem de-a face cu un proiect mai mult decat deosebit. O constructie ale carei etape le vom detalia in cele ce urmeaza.
Construita pe o structura de parter plus etaj, casa are 306 metri patrati si gazduieste o familie din cinci membri. Cerinta principala a proprietarilor a fost aceea de a avea o locuinta confortabila, dotata cu spatii de relaxare pentru familie si prieteni.
Avand aceste lucruri in minte, echipa de la Geometrium s-a concentrat pe imbinarea spatiilor utile cu cele destinate divertismentului. Astfel, la subsol a fost amenajat un spatiu alocat sportului cu masa de ping-pong si echipamente pentru fitness. Parterul cuprinde zona de zi: holul principal, livingul, bucataria, zona de dining si o camera de oaspeti.
Un detaliu interesant este zona de joaca pentru copii asezata in fata bucatariei – astfel, ei pot fi supravegheati in timp ce mama lor gateste. La etaj regasim dormitoarele parintilor si pe cele ale copiilor, fiecare camera avand baie proprie.
O atentie deosebita a fost acordata zonei de zi, tinand cont de faptul ca aici familia isi petrece cel mai mult timp. Conceputa sub forma unui open space, aceasta incapere inglobeaza cele mai importante aspecte ale designului prin structura aleasa si mai ales prin utilitatea fiecarui element constitutiv in parte.Canapeaua tip coltarocupa locul central in zona de living.
Fiind o zona de socializare, s-a optat pentru montarea unui televizor deasupra unui semineu incadrat in perete si a unui bar care desparte vizual zona de bucatarie de cea a livingului. In continuarea bucatariei a fost amenajat spatiul pentru dining.
O zona pe care s-a pus accent este cea a spatiului de joaca pentru copii, gandit ca o metoda eficienta de supraveghere de catre parinti. Mai mult, utilitatea spatiului a fost gandita in avans, astfel ca dupa ce copiii vor ajunge la varsta scolara, aceasta incapere va putea fi transformata in zona de studiu.
Holul a fost conceput ca o zona practica pentru depozitarea lucrurilor de zi cu zi. Pentru un plus de dinamism, designerii au mizat pe contrastul alb-negru si pe accente de rosu.
Materialele sunt naturale, podeaua, rafturile, barul si dulapurile din bucatarie avand lemn solid in componenta. Stilul scandinav predomina in amenajare, paleta cromatica fiind una neutra, in tonuri deschise, cu multa lumina naturala si plante verzi care invioreaza atmosfera.
Pentru dormitor, designerii au avut mana libera, astfel incat au explorat idei care, surprinzator au fost pe placul proprietarilor. Astfel, o carpeta orientala troneaza deasupra patului din dormitor, iar restul detaliilor decorative sunt cat se poate de minimaliste. Se fac simtite si usoare influente rustice prin lemnul vopsit in alb care decoreaza tavanul.
Pentru a crea impresia de camera unica, designerii au optat pentru combinarea zonei de dormit cu dressingul si baia. In plus, colturile peretilor au fost rotunjiti pentru a spori efectul de spatiu unitar. Aceasta trasatura este una dintre amprentele originalitatii celor de la Geometrium, folosita cu succes si inalte proiecte.

Holul cu intrarea principala

Holul principal decorat cu un contrast alb-negru si accente de rosu confera dinamism acestei zone

Privire de ansamblu asupra spatiului de la parter care cuprinde livingul, bucataria, diningul si zona de joaca a copiilor

Living cu canapea coltar minimalist amenajat, intim si placut pentru serile petrecute in familie

Zona de dining se afla in continuarea bucatariei; interesant este felul in care spatiul este evidentiat prin corpul de iluminat
Parterul cuprinde zona de zi cu living, bucatarie, dining si camera de joaca a copiilor
Camera de joaca a copiilor un spatiu deschis astfel incat mama ii poate supraveghea in timp ce gateste
Zona de la subsol destinata sportului masa de ping pong si echipament pentru fitness
Zona de la subsol destinata sportului masa de ping pong si echipament pentru fitness
Baia de la parter pentru oaspeti
Baia de la parter pentru oaspeti
Scarile care duc la etaj un spatiu personalizat cu multe tablouri
Spatiul de la etaj contine si un loc amenajat ca un colt de lectura
Dormitorul principal amenajat intr-un stil pur scandinav cu elemente de originalitate cum ar fi carpeta orientala care vine ca o aditie interesanta pentru spatiu
Pentru a crea impresia de camera unica, designerii au optat pentru combinarea zonei de dormit cu dressingul si baia. Colturile peretilor au fost rotunjiti pentru a spori efectul de unicitate, aceasta trasatura fiind de fapt amprenta originala a celor de la Geometrium
Baia si dressingul se afla intr-un spatiu comun cu dormitorul
Zona de dressing cu multiple spatii pentru depozitare
Zona de dressing
Dressingul include si o mini budoar
Usa de la baie este din sticla mata fiind o tranzitie discreta spre spatiul dormitorului in care este integrata.
Baia principala amenajata cu elemente naturale, lemn si piatra.
Rama neagra de la oglinda un contrast placut cu albul peretilor si al obiectelor sanitare
Camera baiatului amenajata functional, in acelasi stil scandinav
Camera baiatului amenajata functional, cu adevarat un spatiu personalizat
Baia dedicata camerei copiilor
Baia dedicata camerei copiilor amenajata in culori vesele
Camera fetitelor culori pastelate, vesele
Camera fetitelor culori pastelate, vesele si desene pe pereti
Un spatiu multifunctional atat pentru joaca cat si pentru facut temele
Camera actuala a celor trei bebelusi
Camera actuala a celor trei bebelusi mult alb si accente de culori
O camera utila, destinata spalarii rufelor si calcarii lor
O camera utila, destinata spalarii rufelor si calcarii lor, cu numeroase spatii de depozitare
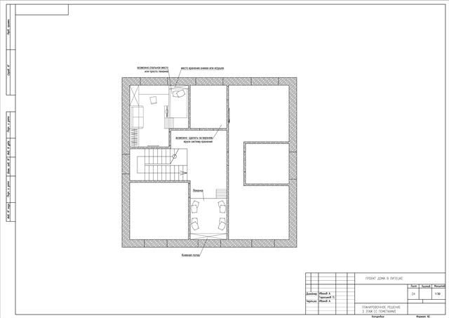
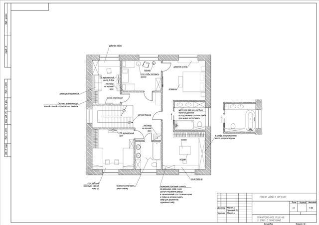
Schita casei
Schita casei
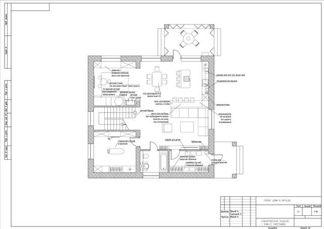
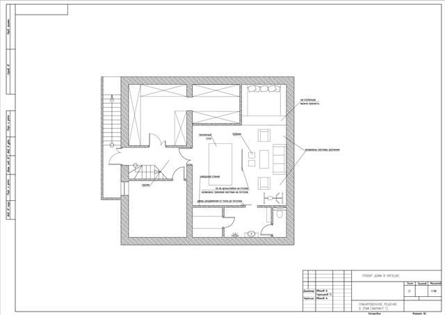
Schita casei
Schita casei








