Indiferent ca vorbim de o suprafata mica sau un interior larg ce ne poate pune la dispozitie o gama variata de idei inovative, atunci cand ne aflam la inceput de drum in ceea ce priveste amenajarea unei locuinte noi, scopul principal este de a crea din spatiul disponibil un loc cu personalitate.
Deschide GaleriaVorbim in acest caz de amenajarea in stil scandinav a unui apartament cu o intindere de 77 metri patrati, apartament ce se afla in posesia unei familii compuse din doi tineri aflate in asteptarea unui nou membru al familiei. Cum reuseste o locuinta sa devina pentru noi o carte de vizita? Odata cu finalizarea proiectului, spatiul amenajat in care se regasesc in cea mai mare parte accentele personale, devine “acasa” prin simplul fapt ca modul de organizare al acestuia si decorarea intrunesc laolalta stilurile de viata ale posesorilor.
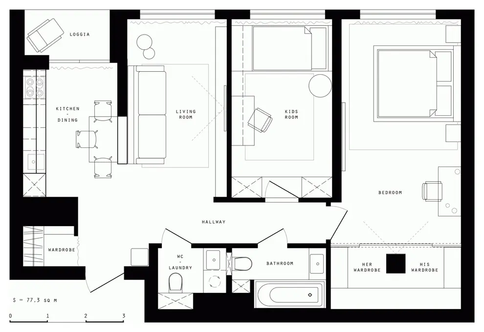
Astfel, cei 77 de metri patrati vor pune la dispozitie un dormitor, o camera pentru nou-nascuti iar bucataria, living-ul si spatiul ramas vor forma impreuna un spatiu deschis, destinat activitatilor de relaxare si petrecere a timpului intr-un mod cat mai placut.
Si ca sa intelegem mai bine ce reprezinta stilul scandinav in amenajarea interioara, vorbim de culori neutre, luminoase, ce exprima naturalete si simplitate. Este un stil ce se pliaza perfect oricarei categorii de varsta, oferind un aer modern si minimalist spatiului pus la dispozitie.
Minimalismul acestui proiect de amenajare este exprimat de culori, mobilier si iluminare. Regasim nuante predominante de alb, gri si crem. Accentele de culoare sunt date de catre accesorii si pentru a crea o uniformitate cromatica, culorile acestora vor fi in tonuri de galben si albastru.
Bucataria exprima naturalete prin simplitatea mobilierului si merge pe aceeasi linie cu spatiul pus la dispozitie de living si hol. Pentru a oferi senzatia unei zone de relaxare, spatiul destinat activitatilor de gatit si servire a mesei este exprimat de un mobilier minimalist, fara detalii, alb cu accente de lemn natural crem.
Modernitatea in acest caz este data de ascunderea manerelor sertarelor si de alegerea unor electrocasnice incorporabile cu un design simplu. Albul este cel care exprima naturaletea si prospetimea oferind spatiului largire vizuala. Trecerea catre living se face discret adaugand nuante de gri atat mural, cat si prin intermediul canapelei pozitionata central ce are in spatele ei o etajera inalta sub forma unui fals perete despartitor. Pentru a merge pe acelasi ton cu bucataria, regasim de aceasta data crem-ul mobilierului in biblioteca si parchet.
Sa nu uitam ca stilul scandinav pune mare accent pe materialele de origine naturala, in cazul nostru lemnul, exprimat 80% din suprafata apartamentului prin parchet si plantele decorative asezate in fiecare incapere.
Piesele de mobilier cu accent Scandinav sunt destinate sa ocupe spatiu cat mai putin, si ofera in acelasi timp functionalitate si confort. Astfel dormitoarele vor avea llinii cat mai simple si vor fi accesorizate prin adaugarea unor elemente decorative moderne de aceasta data. Sa nu uitam de dressing-ul generos, absolut necesar si spatiile de depozitare, toate ascunse intr-o maniera cat mai subtila si simpla.
O baie ingusta, pe lung, poate deveni o adevarata zona de relaxare ca in acest caz. Albul, oglinzile si placile mari de gresie si faianta vor da senzatia de marire a spatiului si vor merge in prelungirea tuturor celorlalte camere creand astfel unitatea spatiului locuit.
Si pentru ca vorbeam de “acasa” in forma unei carti de vizita, detinatorii apartamentului de 77 de metri patrati sunt membri unei familii tinere, pasionati de design, calatorie, sport, cinematografie si un stil de viata sanatos, toate acestea putand fi deslusite din simpla vizualizare a locuintei.
DesignerPhoto: Kirill Kuzmenko.


































