Amenajarea acestui apartament cu 2 camere este realizata intr-un stil scandinav, pe placul tinerilor nonconformisti care sunt mereu pe fuga, sunt pasionati de jobul lor si de calatorii, dar tin foarte mult si la timpul de relaxare de acasa sau de serile de weekend impreuna cu prietenii, in sufragerie.
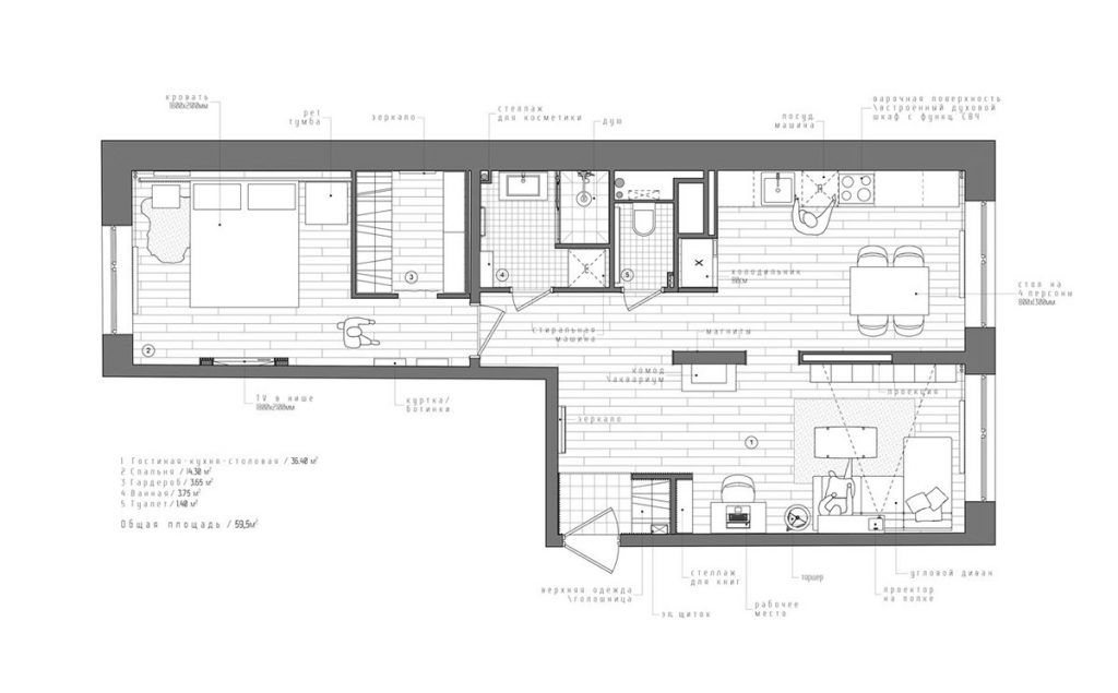
Pentru acest proiect, designerii au avut la dispozitie un spatiu de 60 de metri patrati, din care mai mult de jumatate sunt alocati zonei mixte de living si bucatarie.
Livingul este impartit in doua zone. Exista zona de relaxare, unde nelipsita piesa de mobilier, canapeaua, este in forma de L si este pusa in evidenta de elemente decorative cu mici accente de culoare: perne decorative si o mica galerie de rame.
In locul televizorului a fost ales un videoproiector. Asa ca, daca aveti liber peretele din fata canapelei, cu un proiector puteti sa va faceti un mini-cinema in living.
A doua zona livingului este un spatiu de lucru. Cu o mini-biblioteca si un birou care pastreaza conceptul modern al intregului apartament, designerii au creat un spatiu de lucru placut. Elementul de culoare in aceasta zona este scaunul, al carui galben viu este imposibil de ratat in contrast cu tonurile neutre ale incaperii.
Biblioteca tine loc si de “masca” pentru usa de la intrare. Creata din lemn, poate fi o solutie pentru apartamentele care nu au holul de la intrare, sau pentru apartamentele mici, cand vrei sa castigi spatiu.
Bucataria este delimitata partial prin doua portiuni din perete. Pe acestea au fost aplicate un tapet decorativ si unul functional care imita tabla de scris si pe care proprietarii isi pot lasa mesaje.
Daca in sufragerie culorile predominant neutre erau combinate cu tonuri calde de galben si roz, in bucatarie, stilul scandinav este mai nuantat prin nuante de brun, negru si gri.
Dormitorul este unul luminos, cu draperii romane, albe, ce filtreaza placut lumina. Ca materiale, regasim lemnul la obiectele de mobilier si metalul la cele decorative. Cromatica se pastreaza, cu putine accente de ocru si verde.
Un spatiu foarte util a fost creat pentru dressing. Pe o suprafata de aproximativ 3 metri patrati, spatiile de depozitare pentru haine au fost separate de restul dormitorului.
Acelasi stil nonconformist se pastreaza si in cele doua bai: cromatica simpla, alb-negru, mobilier putin si accesorizat cu rame.
Aceasta idee de amenajare nu este foarte costisitoare. Avand influente din stilul scandinav, se pot combina elemente noi, moderne cu unele vintage. De exemplu, un obiect de mobilier vechi poate fi reciclat si integrat in noua amenajare.
Sursa proiect.













