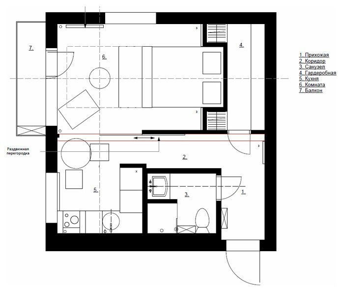
Amenajarea spatiilor mici a fost si va ramane o provocare pentru multi dintre noi. Vorbim astazi de un apartament de doar 29 de mp gandit sa asigure functiunile necesare pentru un locuit confortabil.
Culore, este cuvantul ce descrie cel mai bine aceasta amenajare. Prin intermediul ei se reuseste crearea unui spatiul vessel, tineresc si dinamic. Nuantele blande de lemn ale parchetului ofera caldura si se integreaza intr-un mod armonios cu restul elementelor din apartament.
Configuratia este specifica unui apartament cu o singura camera, un open space ce include: bucatarie, living si dormitor. Cele 3 functiuni se contopesc intr-un spatiu deschis ce reflecta multa personalitate.
Bucataria este totusi separata de restul casei prin intermediul unei usi glisante, astfel se poate gati fara problema raspandirii mirosului neplacut in intreaga casa. Dispunerea mobilierului in forma literi L ajuta la optimizarea spatiului iar pentru un plus de unitate si ordine, electrocasnicele au fost incorporate.
Spatiul de doar 5.6 mp a permis si integrarea unui loc elegant, amenajat pentru luat masa si pentru socializare.
"Dormitorul" este separat de living vizual cu ajutorul unor draperii crem, ce ofera intimitate si un aspect placut. Piesa principala este patul generos (160200) si tapitat ce aduce impreuna cu texturile alese un plus de confort. Simetria realizata prin intermediul oglinzilor si corpurile de iluminat ajuta la obtinerea unui echilibru vizual si la o imagine de asamblu placuta.
In "living" mobilarea se axeaza pe piesele principale: o canapea extensibila, o masuta din lemn pentru cafea, citit si un T V. Lustra completeaza intr-un mod elegant atmosfera creata iar tema naturii isi face aparitia prin intermediul plantelor decorative si bineinteles prin culoarea albastru ce ne duce cu gandul la mare, cer.
Abordarea indrazneata din punct de vedere cromatic s-a dovedit a fi o alegere potrivita chiar daca spatiul avut la dispozitie a fost unul mic. Speram ca vei gasi si tu inspiratie si idei utile pentru propria amenajare.
Designer













