Cand locuiesti in 33 metri patrati si iti doresti o schimbare, dar nu iti permiti o noua locuinta, cea mai buna optiune este sa te apuci de reamenajare. Asa a procedat si acest cuplu care, in ciuda unui spatiu mic, a reusit sa obtina un camin functional, cu spatii de depozitare si dotarile necesare pentru un locuit confortabil.
Deschide GaleriaS-au concentrat pe a obtine un decor luminos, cu cateva accente de culoare, inspiratia lor de baza fiind interioarele scandinave. Predomina o baza neutra cu alb, completata de lemnul de stejar de la nivelul pardoselii. Astfel, spatiul ramane aerisit si luminos.
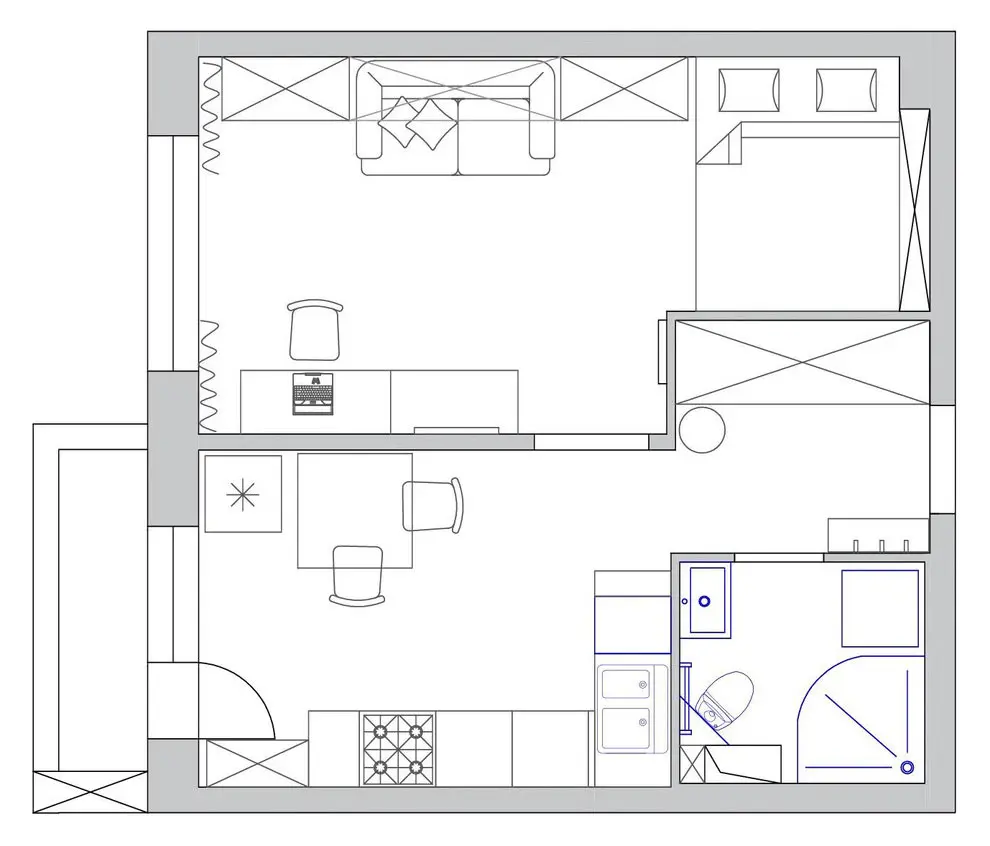
Camera principala indeplineste un rol cu multiple functii; avem o zona de living, cu canapea, zona T V, spatiu pentru birou, dar si zona de dormit. O parte din depozitare este evidentiata prin dulapurile dispuse simetric de o parte si cealalta a canapelei, plus rafturile de deasupra biroului. In plus, a fost conceputa pe comanda si o lada, fixata intre perete si pat, lada ce preia si ea o parte din lenjerii, pilote sau perne.
Pentru ca interiorul sa nu para plictisitor de la prea mult alb, cei doi au optat pentru un model de tapet discret, dispus pe peretele cu depozitarea si cel cu patul. Accentele colorate ale accesoriilor, in special rosul, atrag atentia si confera un plus de dinamica spatiului.
Oglinda montata chiar langa usa de la intrare in camera ascunde o masa de calcat fixata pe un dispozitiv care gliseaza. In plus, oglinda creeaza impresia de largire a spatiului, un efect pe care ti-l doresti sa-l obtii atunci cand locuiesti intr-o camera mica.
Bucataria comunica direct cu holul, fiind practic un open space, delimitat doar prin dispunerea mobilierului. A fost ales un model simplu, cu front alb pentru dulapuri. Electrocasniecele sunt incorporate (cu exceptia frigiderului), iar cele doua laturi ale bucatariei asigura o functionare optima a zonelor de lucru. Desi tot albe, placile mici hexagonale dintre corpurile de mobilier se integreaza placut in decor, efectul fiind de luminozitate sporita. Iesirea incaperii spre balcon ofera un plus de spatiu necesar.
In hol, chiar langa zona de la intrare, au fost integrate dulapuri tip P AX de la IKEA, utile pentru stocare de incaltaminte sau haine voluminoase. Spoturile incastrate asigura o lumina uniforma pentru acest sector al locuintei, o abordare similara fiind realizata si in baie, unde sub un tavan fals benzile L ED ofera un iluminat generos.













































