Pentru astazi am ales sa va prezentam o amenajare clasica, reinterpretata intr-un mod actual, in care accentul a fost pus pe functionaliate, confort si estetic. Apartamentul cu 2 camere descrie o poveste in culori calme si pastelate unde personajul principal, lumina, valorifica fiecare coltisor in parte.
Locuinta este amenajata pentru un cuplu de tineri, ce si-au dorit un spatiu inundat de lumina cu un birou frumos integrat in spatiul living-lui si multe spatii de depozitare.
Designerii au creat pentru fiecare zona a casei spatii fluide, ample si functionale. S-a pus accent pe armonia dintre forme, linii si texturi. Elementele decorative, cromatica abordata si jocul creat intre lumina naturala si cea arificiala sunt principalele secrete dezvaluite de designer in aceasta amenajare. Rezultatul este un spatiu aerisit cu un aspect ordonat, curat, cu note rafinate.
In living s-a optat pentru o mobila multifunctionala cu multe spatii de depozitare. Tapetul cu motive florale reuseste sa stinga monotonia iar culoarea accent verde, este valorificata prin intermediul fundalului alb. In acest fel spatiul prinde viata si adauga nota personala dorita. Langa fereastra regasim amenajat biroul, pentru lucrul de acasa.
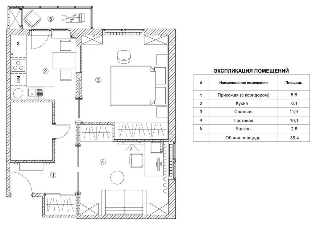
Suprafata bucatariei este mica, motiv pentru care se extinde spre hol. Mobilarea se face pana in tavan iar rafturile suspendate isi fac aparitia, acest lucru reprezentand solutia in ceea ce priveste utilizarea optima a spatiului. Tot pentru o mai buna organizarea si eficientizarea a spatiului, a fost gandita configuratia in forma literei L a mobilei de perete cu electrocasnicele incorporate.
Dormitorul matrimonial ne aduce in prim plan un pat dublu tapitat asortat cu texturi atent alese. Fundalul ramane unul neutru, cu mult alb, crem, pentru a echilibra accentele pastelate de mov, lila. Eleganta isi spune cuvantul prin introducerea in decor a corpurilor de iluminat si a diferitelor obiecte de decor.
Tot in aceasta zona de noapte a fost incorporat in perete un dressing cu un spatiu vast dedicat depozitarii. S-a renuntat la covor pentru a sublinia continuitatea si idea de mai mult spatiu. De o parte si de alta a ferestei sunt asezate 2 corpuri de biblioteca si cu masa de lectura integrata, iar imaginea de ansmablu este una impresionanta.
Simplitatea exprimata in culori si lumina ofera locuintei un plus de farmec si energie.
Designer











Randare Hol

randare Living

Randare Dormitor











