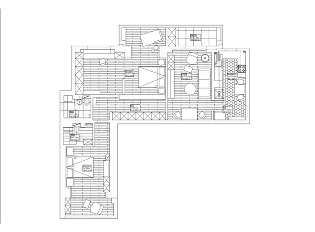
Amenajarea, ce poarta semnatura Acrea Design, are la baza conceptului utilizarea lemnului natur, in diverse forme si detalii, pentru a conferi caldura si linistea cautate de proprietari.
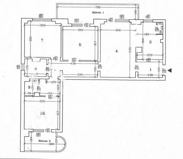
Deschide GaleriaSituat intr-un bloc construit in perioada comunismului, in Bucuresti, apartamentul de 94 de metri patrati era initial compus din patru camere, doua bai, o bucatarie si trei balcoane. In urma interventiilor de reamenajare, a fost necesara o recompartimenatre totala a apartamentului intrucat nu mai corespundea nevoilor beneficiarilor (ultima interventie fusese in anii ‘90). Instalatiile electrice si sanitare au fost si ele modificate pentru a se alinia la cerintele proiectului.
Proprietarii, o doamna si fiica ei adolescenta si-au dorit foarte mult sa isi transforme vechiul apartment intr-un spatiu fresh si luminos, cu multe culori pastelate, suave. Folosirea lemnului natur este atat conceptul cat si laitmotivul amenajarii.Prima provocare a constat in delimitarea bucatariei de zona de zi. Initial, bucataria si livingul formau un open space, fiind delimitate printr-o zona de bar care devenise inutila intre timp. Astfel, a fost construit un perete de gips carton pentru a le separa iar in hol a fost pozitionat un radiaor.
“Balcoanele aveau rol de depozitare pentru lucrurile ce nu isi mai aveau locul in casa. Discutand despre viitorul rol al acestora, a aparut alegerea colectiva de a le transforma in locuri de citit si relaxare, astfel reusind sa marim spatiul destinat dormitoarelor.”
Deoarece dormitorul fetei era prea mic pentru odihna, relaxare si studiu, au hotarat de comun acord sa transforme doua camere intr-un spatiu comun care sa serveasca tuturor cerintelor tinerei cliente.
“Zona preferata a clientei este zona de citit din dormitorul matrimonial care, la fel ca in camera fetei, este un vechi balcon, unde s-a folosit lemnul pentru a se putea face trecerea din dormitor spre zona de citit, atat vizual cat si practic. In releveul initial, apartamentul avea un hol mic ce facea trecerea intre holul principal si dormitorul matrimonial. Am hotarat ca acest hol mic sa fie integrat in spatiul dormitorului matrimonial, cuprinzand astfel si accesul pentru baia de serviciu in interiorului dormitorului.”
“Nefiind suficient spatiu de deschidere batanta pentru usa de la baia de serviciu, am optat pentru o deschidere prin glisare, pastrand acelasi model de usa, acest lucru fiind posibil cu ajutorul celor de Upinteriors, unul dintre furnizorii cu care colaboram pe partea de usi. Baia de serviciu nu era prevazuta cu cada sau dus, astfel am modificat instalatia sanitara, incluzand o zona de dus.”
Spatiile pentru depozitare, avand dimensiuni atipice, au influentatdecizia de a opta pentru mobilier realizat la comanda. Designerii au apelat cu incredere la Serbanmobilier.ro. De la Zen-Deco.ro au fost achitionate perdelele si draperiile, decoratiunile sunt de pe site-ul Vivre, corpurile de iluminat a fost achizitionate de la Ioooi.ro.
Termenul stabilit initial pentru implementare a fost de patru luni, prelungindu-se ulterior pana la noua luni. Compromisurile si incercarile aparute pe parcurs au condus catre un rezultat de succes, clientii simtindu-se acasa intr-un mediu croit pe masura dorintelor lor.
Arhitecti: Acrea Design































