Designerul Veronica Zaznova a creat acest interior modern si relaxant pentru o familie tanara cu un copil, marea provocare a proiectului fiind sa recompartimenteze spatiul si sa creeze doua dormitoare separate fara a compromite insa zona de living.
Deschide GaleriaConceptul de la baza proiectului a fost conturarea unei atmosfere calde, utilizarea lemnului si tonurilor neutre de culoare (nuante de gri, bej, crem) contrastate de zone accent pentru care s-au folosit nuante de albastru. Prima impresie vizuala este de o vacanta la mare.
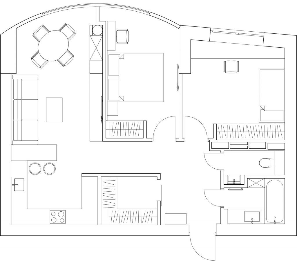
Configuratia apartamentului preluat de la dezvoltatori nu se potrivea cu dorintele si necesitatile clientilor asa ca a fost refacuta integral impartirea spatiilor.
Avand la dispozitie 72 de metri patrati, au creat doua dormitoare , doua bai, un dressing la intrare si zona de zi, deschisa (bucatarie, loc de luat masa si living). Accesul se face printr-un hol de distributie generos.
Conform echipei implicate in proiect, anumite deficiente ale spatiului au fost corectate folosind trucuri de design, cum ar fi marirea vizuala a tavanului din living prin crearea unei nise intre perete si tavan, optand pentru finisarea peretelui intr-o nuanta puternica de albastru si motive geometrice.
Pentru obtinerea spatiului separat pentru dormitorul matrimonial si cel de copil a trebuit sa se tina cont de complexitatea geometriei spatiului, acel peretele exterior radial. Astfel, separarea zonei de noapte de living a fost realizata in functie de tamplarie, pentru a nu mai adauga noi elementele de imbinare.
La nivel de finisaje au optat pentru variante buget mediu, evitand compromisurile in ceea ce priveste calitatea. Pentru pardoseala a fost propus parchetul laminat de la Kaindl. In bai s-au folosit placi ceramice cu model de lemn si beton. Peretii au fost finisati cu vopsea lavabila Caparol, iart peretii tip accent au fost placati cu lemn.
Design: Veronica Zaznova
Foto: S ER GE Y P IL IP OV IC H



































