Proiectul de amenajare pe care il prezentam astazi ne inspira printr-o abordare eleganta, cu accent pe functionalitate. Decorul este tratat minimal insa accentele regasite ii confera personalitate.
Deschide GaleriaDesignerul construieste un joc de contraste intre materiale si culori, reusind sa adauge interes in fiecare zona. Acesta a avut misiunea sa obtina un spatiu functional si confortabil, in care sa locuiasca 2 persoane mama si fiica.
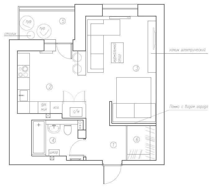
Apartamentul are o singura camera si o suprafata de 44 mp. Camera este impartita in 4 zone distincte: un living, un mini bar, ce face trecerea spre zona bucatariei si "dormitorul".
Spatiul ce formeaza living-ul este conturat pe un fundal preponderent alb iar principalele piese ce il compun sunt reprezentate de un coltar extensibil, o masuta de cafea, un semineu electric (o cerinta obligatorie din partea proprietarei) si 2 dulapuri suspendate asezate simetric. Avem multe contraste, piese de mobilier cu fronturi lucioase in culori inchise si fronturi in nuante deschise, calde de lemn. Toate acestea reusesc sa creeze un mediu modern, potrivit unui locuit confortabil. Pe langa acestea, in camera exista un panou ce ilustreaza imaginea orasului New York, dar, care in acelasi timp "ascunde" un pat dublu rabatabil.
Bucataria respecta aceeasi linie moderna si are ca centru de interes mobila cu fronturi ultra lucioase. Contrastul puternic alb-negru reprezinta baza cromatica a acestei camere. Corpurile de mobilier sunt dispuse pe doua laturi, oferind multe spatii pentru depozitare. Amenajarea are un aspect unitar, compact si frumos din punct de vedere estetic. Iluminatul artificial isi face simtita prezenta prin benzile led de la nivelul blatului de lucru si prin spoturile montate pe tavan, oferind o nota eleganta intregului decor. Suprafata de lucru este realizata din piatra artificiala .
Baia este aerisita si este concentrata pe functionalitate si simplitate. Cromatica este compusa din nuante deschise de gri si alb. Scenariile de iluminat general si ambiental sunt prezenta si aici si reusesc sa accentueze intr-un mod armonios mobilierul. Faianta este facuta din placi de portelan si este montata pana in tava pentru un efect unitar.
Designer: Gradiz





























