Ceea ce ne-a atras cel mai mult la acest proiect este faptul ca s-a pus accent pe functionalitatea spatiului, astfel incat gasim aici, intr-o singura camera, dormitorul, livingul, biroul, dar si un loc pentru servirea mesei.
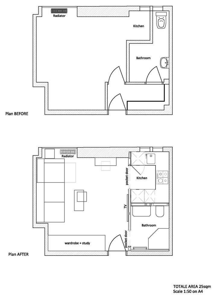
Deschide GaleriaGarsoniera a fost reconfigurata pentru a se obtine o forma dreptunghiulara care creeaza imediat sentimentul de spatiu. Avand in vedere ca vechea bucatarie avea o configuratie problematica ce ocupa prea mult spatiu, aceasta a fost regandita in scopul de a fi perfect functionala.
Pentru a se asigura ca bucataria va fi utilata complet, cei de la designerii au proiectat intai mobilierul de bucatarie si apoi au construit zidurile in jurul acestuia.
In ceea ce priveste baia, s-a optat pentru o cabina de dus in forma de diamant deoarece ocupa mai putin spatiu si are un aspect minimal. Vasul de toaleta suspendat si rezervorul vasului ce este incastrat in perete, pe langa faptul ca ofera o nota sofisticata si ingrijita, dau posibilitatea crearii unui spatiu de depozitare suplimentar deasupra rezervorului.
Acesta este mascat bine datorita usii cu oglinda.
O alta idee interesanta a fost alegerea tipului de usi interioare, si anume glisante, pentru a salva un spatiu valoros.
Surprinzator este faptul ca patul dublu se trage in jos din perete, peste canapea, oferind posibilitatea unui somn placut si odihnitor, si lasand, totodata, pe timpul zilei spatiu de desfasurare prin plierea acestuia.
Spatiu de lucru este mascat interesaant intr-un dulap cu oglinda, ce are balamale care permit deschiderea usilor la 180 grade, oferind un spatiu de lucru confortabil, productiv, dar si ordonat.
Din fericire, apartamentul beneficiaza de lumină naturală bună, datorită poziționării la ultimul etaj.
Pentru mobila si canapea au fost alese culori pale, in scopul de a maximiza impresia de spatiu deschis si au fost adaugate accente de culoare prin covor si perne decorative.
Reamenajarea acestei mici garsoniere este uimitoare. Aceasta satisface stilul de viata al unei persoane active ce are nevoie atat de spatiu de lucru, cat si pentru relaxare si odihna.













