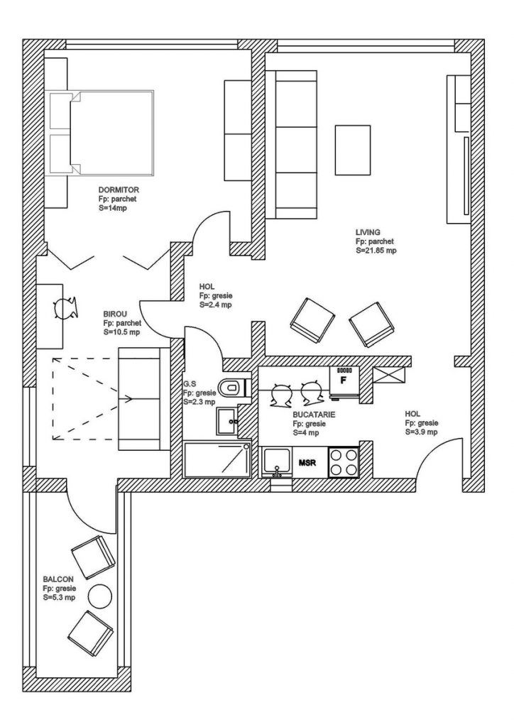
Vorbim astazi despre un apartament de 60 metri patrati din centrul Bucurestiului cu o priveliste spectaculoasa catre Sala Palatului si Biserica Kretzulescu. Proprietarii si-au dorit finisaje de calitate si un spatiu care sa transmita un sentiment de confort, de acasa.
Amenajarea a fost realizata in stil modern, cu forme simple, puse in valoare de corpurile de iluminat atent coordonate, pozitionate ca reflectoare care sa puna in lumina detaliile decorului.
Punctul de pornire al amenajarii apartamentului a fost chiar parchetul din stejar existent. A fost pastrat si reconditionat, iar nuanta sa a influentat alegerea mobilierului si cromatica per ansamblu. Paleta de culori este predominant neutra cu accente de albastru pe care le regasim sub diferite forme pe parcursul amenajarii.
Zona de zi surprinde prin caldura si atmosfera primitoare conturata excelent prin texturi si piese bine alese. Gandita in liniile unui stil modern, canapeaua tip coltar, masutele suprapuse precum si corpul tip consola folosit ca suport pentru televizor compun in mod armonios un living luminos si aerisit completat in mod fericit de privelistea oferita de ferestrele generoase.
Accesoriile alese de Irina desavarsesc decorul: tablourile colorate, draperiile turcoaz precum si corpurile de iluminat.
Ne place cum placarile din MDF de pe pereti reiau discret modelul retro al parchetului, o abordare in tendinte menita sa ofere spatiului un plus de interes prin zonele accent create.
In mod similar intalnim acelasi tip de placare si in zona de noapte. Dormitorul preia tematica din celelalte spatii. Patul din catifea reiata aduce o nota eleganta, iar accentele sunt date de corpurile de iluminat si tabloul colorat ce continua subtil motivul calatoriilor abordat in amenajarea intregului apartament.
Zona de birou a fost amenajata in continuarea dormitorului; separarea se face prin 2 usi glisante. Este un spatiu gandit ca punct de lucru pentru o persoana care lucreaza deseori de acasa si are nevoie de o atmosfera creativa.
Bucataria de numai 4 metri patrati a fost o provocare. Incaperea a fost optimizata prin culori deschise si finisaje din MDF lucios ce reflecta lumina si amplifica astfel spatiul. Panoul de sticla colorata reuseste sa contureze o zona de accent. Fiecare coltisor a fost optimizat pentru a reusi sa se integreze si spatii de depozitare si loc pentru gatit si chiar loc de luat masa.
Tot la categoria provocarilor din aceasta amenajare putem sa enumeram si baia. In cei 2.2 metri patrati s-a reusit incadrarea tuturor obiectelor necesare cabina de dus, lavoar, toaleta, calorifer si spatiu pentru depozitare.
Coerenta, unitara si moderna, o adevarata sursa de inspiratie si idei practice este aceasta amenajarea realizata de i Decorate! Proiect realizat de arhitecta Irina Radu de la i Decorate.





Planul apartamentului










