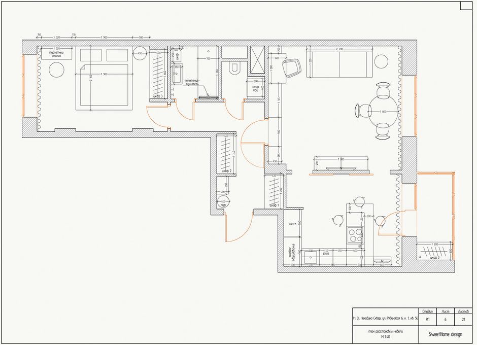
Dupa ce au cumparat apartamentul de 2 camere, acest cuplu a apelat la ajutorul celor de Sweet Home Design pentru a contura amenajarea caminului visat. De la niste simpli pereti de beton apartamentul s-a transformat intr-un spatiu confortabil, vesel si tineresc pe care cei doi il numesc acum acasa. Iata cum au gandit designerii amenajarea acestui apartament de 56 metri patrati.
Deschide GaleriaPentru a spori spatiile de depozitare, au fost operate cateva modificari functionale. In hol, usa spre bucatarie a fost eliminata pentru a crea o nisa cu dulap. Mai apoi, in living, peretele dinspre bucatarie a fost prevazut cu 2 usi simetric pozitionate, creand astfel un acces facil spre bucatarie.
Cei doi tineri nu si-au dorit o bucatarie deschisa, iar solutia cu care au venit designerii li s-a parut foarte potrivita. Atunci cand nu se gateste, usile culisante sunt deschise, iar spatiul primeste mai multa lumina si pare astfel mai mare. Odata cu aceste usi, spatiul pare mai fluent.
Bucataria
Apoi, blatul de lucru se prelungeste sub forma unei insule de bucatarii ce incorporeaza si plita, si cuptorul precum si sertare adiacente, dar ofera loc si pentru luat masa.
In locul fostei usi a fost amenajata o nisa ce incastreaza frigiderul, iar peretele comun cu livingul preia finisajul cu caramida aparenta, lasand impresia ca spatiul este unul si acelasi, reducand din bariera impusa de delimitarea existenta.
Livingul
Din punct de vedere cromatic predomina nuante neutre de crem si bej, mult alb, griuri discrete si tuse de galben intalnite sub diferite forme decorative de-a lungul amenajarii intregului apartament.
Dormitorul
Nici in baie nu puteau lipsi accentele de culoare, asa ca si aici designerii s-au jucat cu placi de faianta roz prafuit si gresie cu un model tridimensional.
Speram sa te inspire toate detaliile pe care le-ai intalnit in aceasta amenajare de apartament si sa-ti fie utile pentru propria locuinta!

































