Iti propunem astazi o amenajare a unui apartament de 63 metri patraticare surprinde printr-un stil original conturat in fiecare incapere in parte. Hai sa privesti in detaliu tot ansamblul creat.
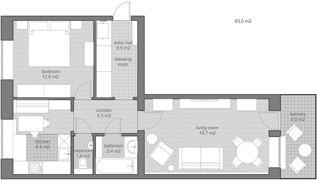
Deschide GaleriaApartamentul este configurat ca unul de doua camere, cu living si dormitor, bucatarie, hol, balcon si doua bai. Spatiile au fost amenajate cat mai functional posibil; ca finisaj predominant vom regasi caramida aparenta, cu o baza de tonuri de gri si pasteluri discrete. La nivelul pardoselii, parchetul se intrepatrunde cu placi ceramice hexagonale intr-o nuanta asemanatoare lemnului. Cromatica neutra a griului este completata de albul corniselor, al plintelor si al usilor. Cu ajutorul iluminatului, spatiul ramane aerisit si luminos, in ciuda zonelor mai inguste precum cea din hol.
Pentru living s-a dorit o atmosfera relaxanta, o mica zona de dining si un loc pentru lectura. Astfel, a fost conturat un spatiu confortabil, tihnit, cu cateva piese de mobilier de inaltime medie pentru a nu sufoca incaperea. Camera este lunga si ingusta, de aceea mobilierul a fost asezat langa perete, lasand zona centrala pentru o circulatie fluenta. Lambriul alb care decoreaza peretii camerei contrasteaza cu textura caramizii.
Griurile si caramida le regasim si in bucatarie. Aici, in cei 9 metri patratis-a amenajat armonios un spatiu pentru gatit, cat si unul pentru luat masa, dar potrivit si pentru socializare. Corpurile de mobilier dispuse pe doua laturi incorporeaza electrocasnicele, prelungindu-se chiar si in zona ferestrei. Albastrul pastel folosit pentru frontul dulapurilor reprezinta o excelenta alegere pentru o bucatarie; in plus, albul blatului de lucru si al mesei echilibreaza paleta de culori. Pentru a realiza o delimitare discreta intre cele doua zone din bucatarie, designerul a ales sa continue cu parchetul din hol pana in dreptul ferestrei, de cealalta parte a incaperii fiind montate placi ceramice hexagonale.
Dormitorul de aproximativ 13 metri patrati pare mai mic din cauza dulapurilor. Peretele de caramida aparenta este zona de accent a camerei pusa in evidenta printr-un iluminat de accent sub forma unor veioze minimaliste. Caloriferul este mascat elegant cu un panou decorativ alb, acelasi intalnit si in living sau bucatarie. Principala zona de depozitare a casei o vom gasi in holul de la intrare, pe toata lungimea lui.
Si baile sunt abordate intr-un mod original. Baia principala de aproximativ 3,5 metri patrati, care include doar zona de spalare, cu lavoar si cada, surprinde prin detaliile menite sa iti distraga atentia de la suprafata mica. Dulapul de sub lavoar, blatul din lemn sau placile decorative alaturi de albastrul pastel reprezinta elementele care transforma aceasta baie din banala intr-una cu stil. Faianta este alba, simpla, tocmai pentru a pune in evidenta aceste piese.
Si baia de serviciu, cu toaleta este amenajata intr-un mod similar, avand aceleasi placi ceramice la nivelul pardoselii, iar pe pereti, faianta alba dispusa de data aceasta in romburi. De la jumatate in sus, peretii sunt zugraviti cu vopsea potrivita pentru mediu umed. Cele doua usi care ascund un mic spatiu de depozitare ne duc cu gandul la obloanele unei ferestre; scopul lor, din nou, este sa-ti pacaleasca ochiul si sa uiti de faptul ca te afli intr-un spatiu de doar 1,6 metri patrati.
Speram sa-ti placa si tie acest apartament de doua cameresi sa-ti fie o sursa de inspiratie utila pentru propria amenajare!
Designer: Oksana Dolgopiatova






































