Pentru reamenajarea apartamentului sau, acest tanar a apelat la ajutorul unei echipe de designeri pentru a transforma spatiul de 50 metri patrati intr-unul modern, mai functional, cu mai multa personalitate. Urmareste in cele ce urmeaza cateva detalii despre proiect.
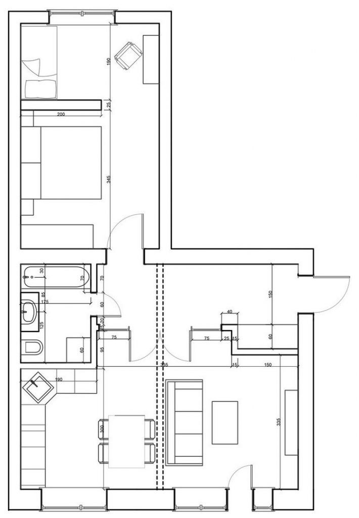
Printre modificarile importante realizate la nivelul apartamentului mentionam eliminarea peretelui dintre living si bucatarie, largirea usoara a holului si integrarea unor usi frantuzesti pentru accesul in living.
Amenajarea rezultata poate fi descrisa ca moderna, in culori neutre, deschise pentru a spori luminozitatea camerelor si cu cateva accente mai masculine, cu gri, verde-fistic sau albastru, unele mai saturate, altele mai diafane.
Zona de zi s-a conturat astfel ca un spatiu destinat relaxarii si socializarii unde si gazda, dar si oaspetii sa poata interactiona chiar si atunci cand se gateste. Livingul si bucataria sunt delimitate doar la nivel vizual din pozitionarea mobilierului, a canapelei mai exact. Decorul livingului s-a dorit a fi cat mai simplu si neincarcat si mai ales, fara T V.
Ies in evidenta tabloul si lampa de pe comoda pe un excelent fundal de albastru. Dar, dintre toate, piesa de rezistenta este chilimul, dorit de beneficiar, ca o amintire a mostenirii sale orientale.
In spatiul destinat bucatariei, amenajarea urmeaza aceeasi linie. Dispunerea pe doua laturi a permis incorporarea electrocasnicelor, asigurand spatiul optim pentru blatul de lucru. Albul si textura lemnului de la nivelul blatului pastreaza amenajarea cat mai luminoasa si aerisita. Geometriile braului dintre corpurile de mobilier imprima dinamism amenajarii.
Si zona mesei merita atentia cuvenita, fiind un loc placut, elegant conturat prin atentia asupra detaliilor.
In dormitor, a fost conturat un ambient odihnitor, tihnit, cu o paleta de culori optim aleasa. Tablia de pat, pernele decorative, cuvertura, draperiile isi aduc si ele aportul prin texturile cu care imbogatesc decorul. Dulapul pentru haine a fost realizat pe comanda dupa schitele designerului; usile cu oglinzi fiind o alegere inteligenta, creand efectul de largire a spatiului.
La fereastra a fost amenajata o mica zona de lucru.
Un dulap asemanator, dar fara oglinzi, vom intalni si in holul de la intrare. Aici, piesa care ne atrage atentia este bancuta cu sertar, iar placile decorative folosite pe o mica suprafata a pardoselii delimiteaza vizual zona de acces in locuinta de restul holului care duce spre camere.
O adevarata sursa de inspiratie acest apartament de 2 camere! Speram sa fie si pe placul tau acest proiect!
Designeri: El Born Studio













