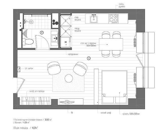
De designul interior al acestui apartament industrial chic, de doar 40 de metri patrati, s-a ocupat biroul de arhitectura I NT2 Arhitectura. Acesta este un exemplu bun de amenajare tipica a stilului industrial chic, stil care incepe sa devina foarte popular in randul celor care isi amenajeaza apartamentele.
Deschide GaleriaDesi pare putin cam neobisnuit incepem descrierea acestui apartament cu baia. Cu siguranta aceasta este piesa de rezistenta a amenajarii. Este practic ascunsa intr-un cub de lemn pozitionat in coltul apartamentului. Unul dintre peretii laterali adaposteste, pe partea din exterior, electrocasnicele din bucataria de tip open space.
Suportul pentru lavoar este cat se poate de nonconformist, este o masina de cusut reconditionata.
Acest spatiu este un exemplu foarte bun de amenajare care imbina esteticul cu functionalul. Sufrageria, bucataria si dormitorul se afla toate intr-o zona de tip open space.
Podeaua este cu adevarat industriala, din scandura nefinisata, dar care se imbina foarte placut din punct de vedere al culorii cu celelalte elemente de decor. De exemplu,fotoliile vintage cu spatare foarte mari si confortabile, masa cu rama din conducte si electrocanicele din inox.
Citeste si Uptown Apartment, o locuinta din Bucuresti amenajata in stil neo-pop
Peretii, din caramida vopsita, au o nuanta foarte metalica si respecta aceeasi linie a stilului industrial chic. Tavanul din ciment, impreuna cu burlanul metalic se imbina perfect cu candelabrul din tavan care atarna deasupra mesei.
Totul respira un aer relaxat si casual tocmai datorita faptului ca acest stil se aplica foarte bine amenajarilor de tip open space. In general, acest stil este ales de persoanele tinere care sunt si de un anumit tip de viata care sparg barierele conventionalului.
Sursa foto: I NT2 Arhitectura

apartament industrial chic

apartament industrial chic

apartament industrial chic

apartament industrial chic

apartament industrial chic

apartament industrial chic

apartament industrial chic

apartament industrial chic

apartament industrial chic

apartament industrial chic












