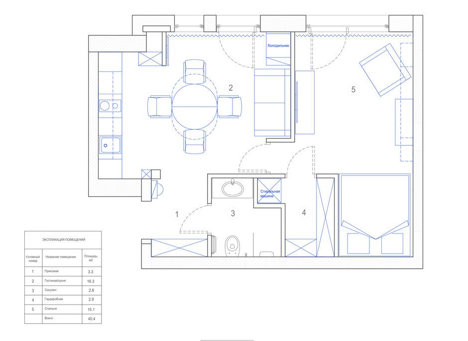
In acest apartament de 40 metri patrati abordarea s-a dorit a fi simpla, functionala, cu un decor modern, placut. Spatiul este configurat ca o locuinta de doua camere, cu o zona de zi ce include bucataria, living mic si un dormitor cu baie.
Deschide GaleriaSuprafata redusa a apartamentului a fost bine optimizata de catre designer, cu zone functionale potrivite stilului de viata al beneficiarilor. Amenajarea a fost conturata cu finisaje cat mai apropiate de materialele naturale, cu pardoseala din esenta de stejar si placari care imita piatra naturala.
Culorile in tonuri deschise amintesc de cele ale naturii, cu albastru si verde in proportii discrete. Predomina nuante neutre si alb, astfel spatiul pare mai mare si mai luminos in ciuda dimensiunilor mici ale casei.
Zona de zi este una armonios conturata, cu living redus doar la nivelul unei canapele si un corp de biblioteca, bucatarie si loc de luat masa. Mobilierul a fost realizat pe comanda pentru a se potrivi cu nevoile de depozitare ale beneficiarilor si mai ales cu spatiul disponibil. Solutiile creative propuse de designer nu incarca spatiul, avand o distribuire optima.
In plus, dulapurile din hol au fatete din oglinzi, fapt ce creeaza impresia de spatiu mai mare, mai luminos, reflectand lumina ferestrelor.
Bucataria este compacta, cu mobilier liniar distribuit si electrocasnice incorporate pentru a crea o amenajare unitara si ordonata. Esentele de lemn ale fronturilor in combinatie cu albul creeaza un efect placut, amintind de tematica dezvoltata in ansamblul decorului. Zona de luat masa, discret amenajata, face parte din zona de zi.
Dormitorul a fost conturat ca o prelungire a livingului, fiind impartit discret intre zona de dormit si spatiu de relaxare cu loc de lectura si zona TV. Peretele-accent realizat cu o nuanta foarte placuta de verde este punctul de atractie al camerei. Verdele este discret reluat si la nivelul draperiilor sau al decoratiunilor.
In baie, s-a mizat pe elemente naturale, cum ar fi placile ce imita marmura sau placarile de lemn. Fiind un spatiu mic, s-a optat pentru o zona de dus tip walk-in, iar oglinda supradimensionata, benzi LED, depozitarea de sub lavoar descriu o baie optim amenajata pentru confortul dorit.






















