Modern si elegant, acest apartament de 31 de metri patrati de tip garsoniera din reuseste sa ofere tot confortul necesar fara a sacrifica aspectul estetic, la fel de important pentru client. Dimensiunile sale modeste inclina balanta mai mult catre utilitate si confort, fiind amenajat pentru a putea gazdui doua persoane.
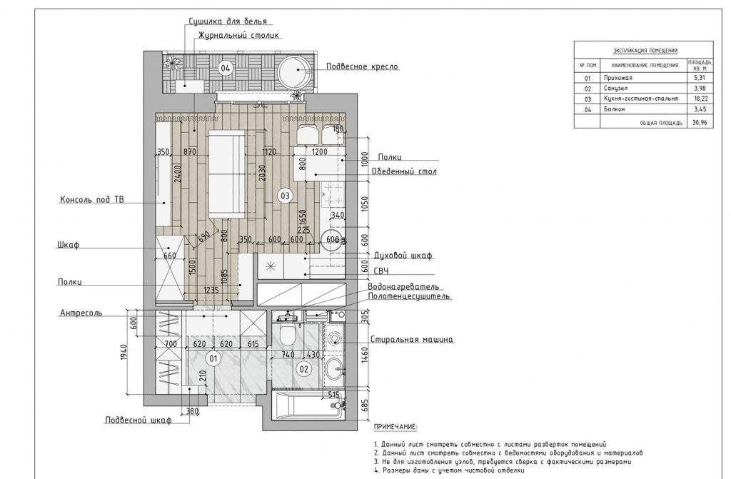
Deschide Galeria Spatiul disponibil a fost impartit in zona de intrare compusa dintr-un hol generos de cinci metri patrati si o baie cu cada incastrata si camera de zi, la randul ei compusa din zona de living si bucataria deschisa cu loc de luat masa adiacent blatului de bucatarie. Canapeaua din living este extensibila si poate deveni oricand un pat dublu extrem de comod.
Amenajarea spatiului compact propusa de echipa de arhitecti imbina armonios functionalul cu eleganta. Designerii au reusit cu succes sa mareasca vizual spatiul existent si sa gaseasca solutii de depozitare eficente, fara sacrificii estetice.
Alegerea unor finisaje in tonuri deschise reuseste sa deschida vizual spatiul si sa creeze o atmosfera calda, placuta. Gresia portelanata si parchetul laminat, deschis, sunt completate de un tapet artistic (montat pe peretele cu televizorul) si de un joc de texturi contrastante.
Regasim un model placut de catifea la mobilierul tapitat, covorul pufos din fata canapelei , draperiile de tip blackout din material textil intr-o nuanta calda de roz prafuit. Toate acestea contribuie cu succes la conturarea unei atmosfere calduroase si confortabile.
Spatiile de depozitare au fost atent studiate si rezolvate cu mult accent pus pe detalii. Dulapul din hol cu usi glisante placate cu oglinzi asigura depozitarea pieselor vestimentare recurente, in timp ce mobilierul de deasupra usii de intrare in zona de zi a fost proiectat pentru o depozitare pe termen lung, profitand la maxim de spatiul existent, fara a compromite confortul.
Baia a fost amenajata respectand linia stilistica a locuintei, fiind dominata de nuante neutre si de placile de marmura in format mare. Depozitarea generoasa a fost proiectata ca o carcasa continua cu lavoar incorporat si sertare cu spatii de depozitare sub blat . Usile glisante ascund si masina de spalat rufe.
Oglinda iluminata cu banda led completeaza in mod reusit compozitia stilistica, fiind extrem de practica in acelasi timp.
Implementarea proiectului s-a derulat pe parcursul a zece luni, de la prima intalnire cu clientul pana la mutarea in locuinta proaspat amenajata.
Designer: AFONSKAYA & TROFIMOVA
Foto: Alexandra Kurlygin
via inmyroom













