Relativ mic daca ne uitam la numarul metrilor patrati (43mp distribuiti in doua camere) apartamentul despre care povestim astazi surprinde prin luminozitatea sa si senzatia de “aerisit” datorata unei zonificari si mobilari eficiente.
Clientul, o doamna aflata la inceputul vietii sale de adult, proaspat absolventa de facultate, s-a implicat cu drag in tot procesul amenajarii (unele dintre piesele de mobilier le-a achizitionat pe cont propriu, insa de comun acord cu designerul pentru a pastra in final un stil coerent si o imagine unitara a spatiului).
Cerintele initiale ale proiectului de amenajare au constat in crearea unei atmosfere placute pentru relaxare, un livingroom unde sa primeasca oaspeti si integrarea unui birou in zona de zi pentru a face cat mai placuta munca de acasa.
Rezultatul proiectului vorbeste de la sine: atat timp cat fiecare colt al locuintei este atent valorificat, putem reda sentimentul de “acasa” si satisface toate necesitatile de zonificare si ergonomie indiferent de suprafata disponibila.
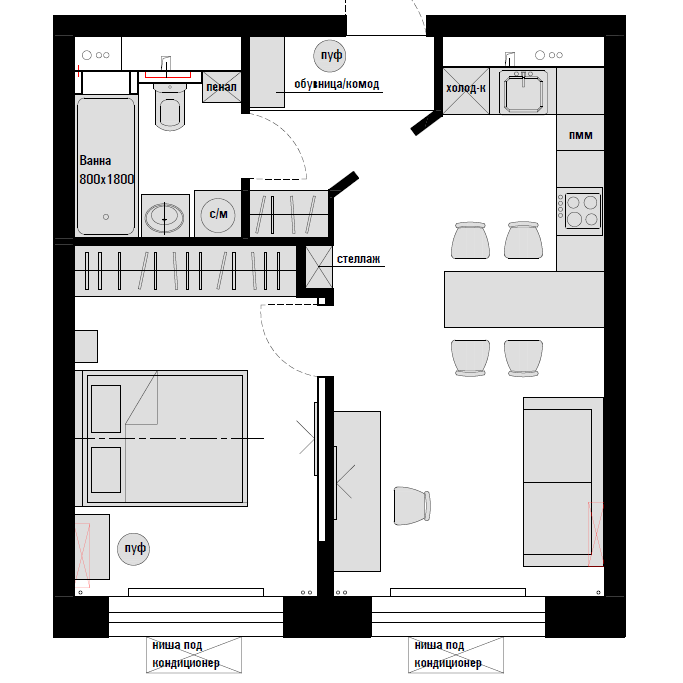
La nivel de compartimentare s-a pastrat zonificarea creata de dezvoltator, dovedindu-se a fi convenabila; doar accesul catre dormitor a fost modificat pentru a crea mai mult spatiu de depozitare in hol (acum accesul se face din zona de living langa peretele media).
Baia este amplasata langa usa de intrare; din hol se ajunge in zona de zi compusa dintr-o bucatarie minimalista cu mobilier dispus in “L” continuat cu un blat tip bar, o mica zona de living si peretele cu biroul. Canapeaua mica, dar moderna, din tesatura gri, este o prezenta eleganta in amenajare, pusa in valoare de perne decorative colorate.
Pentru pardoseala, designerul Tatyana Ivanova a optat pentru un parchet laminat intr-o nuanta naturala nu prea inchisa, care serveste ca fundal pentru mobilierul modern si adauga un plus de confort si caldura casei. Accente de lemn regasim si la blatul de bucatarie si blatul biroului de lucru.
In cadrul neutru, modern al zonei de zi se remarca accentele de roz prafuit (catifeaua scauneleor de bar) si nuanta de albastru roial a draperiilor din catifea. Elementele aurii (de la corpurile de iluminat, manere, accesorii) adauga un plus de eleganta spatiului.
Dormitorul a fost si el amenajat in nuante de roz prafuit si accente aurii. Rezultatul este un interior delicat si calduros, care oglindeste personalitatea beneficiarului.
Designer: Tatyana Ivanova
Foto: Evgeniya Muravyova



























