Amenajarea pe care ti-o propunem astazi reuseste sa imbine excelent trasaturi ale stilului scandinav cu influente de tip loft, retro si industriale intr-un spatiu de 56 metri patrati locuit de un tanar. Este una din acele locuinte unde personalitatea beneficiarului reiese din fiecare detaliu al amenajarii.
Cu siguranta, culorile inchise ale finisajelor sunt primele care atrag privirea; negrul, griul, patina vintage a unor decoratiuni redau un spirit masculin, brut. Cromatica este echilibrata de alb si de texturile de lemn, iar lumina naturala sporeste efectul de spatialitate gratie unor suprafete vitrate generoase.
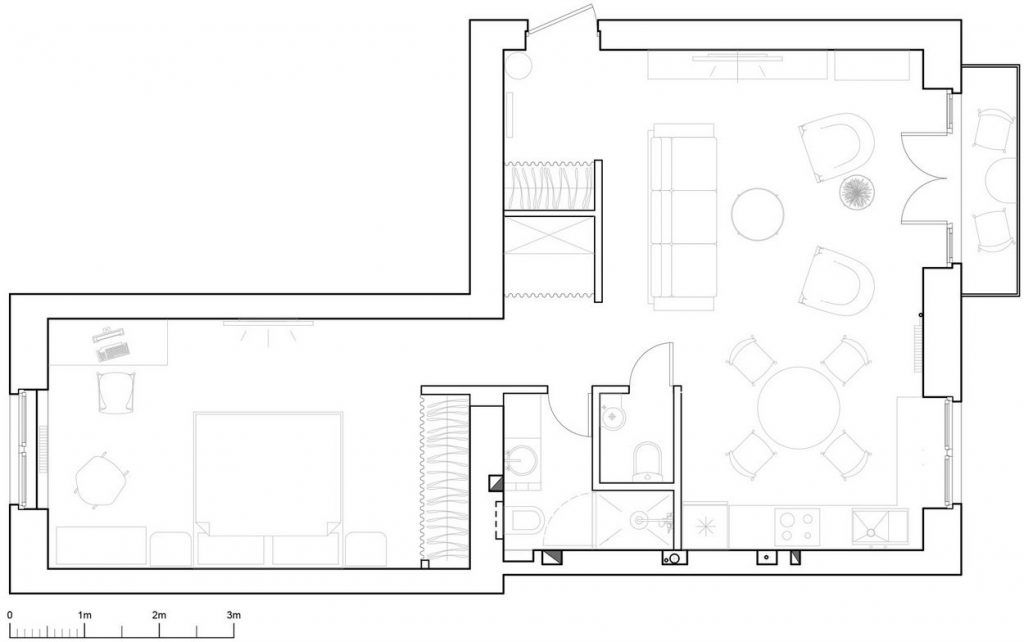
Apartamentul este configurat ca unul de 2 camere, cu o zona de zi in care livingul si bucataria compun un tot unitar. Accesul spre zona de noapte este liber, neexistand o usa care sa delimiteze incaperile. Cu toate acestea, fiecare functiune in parte este bine evidentiata in ciuda acestei deschideri a spatiului din apartament.
Pentru a pastra unitatea vizuala a amenajarii, designerul a mizat pe folosirea aceluiasi tip de parchet in tot apartamentul cu insertii de placi ceramice hexagonale negre in zona bucatariei si a holului; modelul ales se incadreaza minunat in tematica descrisa.
In zona bucatariei, negrul mobilierului contrasteaza cu albul placilor de faianta, dar si cu textura de caramida aparenta. Masculin si elegant deopotriva, stilul acestei bucatarii este tipic unui loft in spirit industrial, prin elemente precum corpul de iluminat, designul mobilierului sau cel al scaunelor din zona de luat masa.
Suprafata lucioasa a blatului de lucru care imita marmura reflecta lumina si echilibreaza cromatica spatiului din bucatarie. Ajuta din plin si fereastra larga care permite multa lumina naturala la interior.
Livingul a fost conturat in jurul zonei de conversatii, canapeaua din piele, cele doua fotolii si masuta din mijloc reprezinta piesele care prin dispunere reusesc sa descrie acest spatiu de zi. Fiecare element adaugat, de la corpurile de mobilier, la decoratiuni si plante intregesc acest peisaj prin trasaturile lor retro, vintage sau industrial.
Inainte de a ajunge in dormitor, exista o zona de depozitare cu doua intrari, una aferenta spatiului din holul de la intrarea in locuinta si una cu acces atat pentru bucatarie cat si pentru dormitor; tot inainte de aceasta parte a casei, vei intalni un perete negru care marcheaza zona bailor.
Nu e greu de imaginat ca si amenajarea dormitorului urmeaza aceeasi linie personala, cu imbinari de influente care fac din peisajul camerei unul foarte original. Pe langa zona destinata hainelor, spatiul a permis si o amenajare a unei zone de birou.
Design: M2project













