E SC AP E este o casa portabila extrem de adorabila, care poate fi atasata de orice rulota si transportata oriunde in lume, avand mereu confortul de acasa indiferent de destinatia in care vei ajunge.
Deschide GaleriaConstruita aproape in totalitate din materiale durabile, cum ar fi lemnul masiv bine uscat si presat, micuta casuta portabila poate fi plasata oriunde si poate fi mutata cu aceeasi usurinta in cazul in care vrei alt spatiu in care sa o pozitionezi.
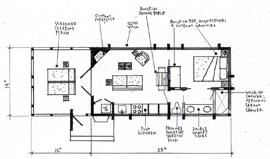
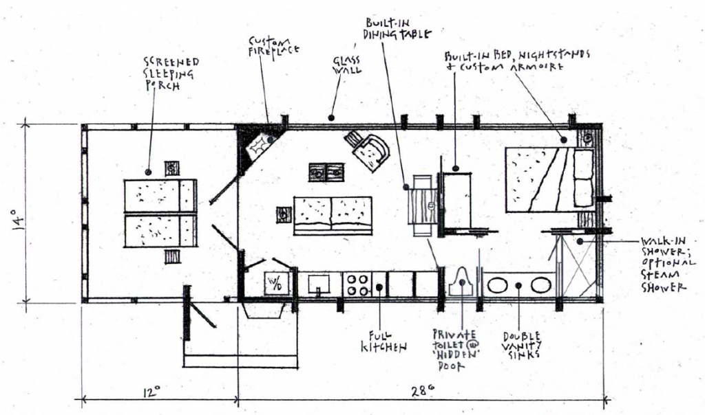
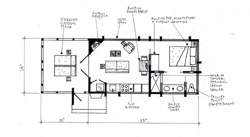
Fiind o casa portabila, aceasta a fost construita si intr-o maniera foarte eco-friendly, avand un spatiu locuibil total de aproximativ 37 de metri patrati, ceea ce face din E SC AP E varianta perfecta de cazare in orice vacanta.
Mergand pe ideea ca mai mare nu inseamna intotdeauna mai bun, E SC AP E a fost conceputa pe ideile lui Frank Lloyd Wright, care s-a gandit o perioada lunga de timp la casa perfecta de vacanta, pentru orice vacanta!
DesiE SC AP Eeste o casa mobila in adevaratul sens al cuvantului, atentia la finisaje nu lasa de dorit, lemnul masiv fiind foarte atent ornat si slefuit, dand aspectul unei cabanute de munte extrem de practice si de cochete.
Aceasta casuta realizata manual poate fi livrata oriunde in lume, pentru orice doritor de o locuinta inedita, portabila, care sa fie atracta oricarui spatiu de campare in care o vei pozitiona.
Poate ca E SC AP E nu este cea mai mare casa mobila pe care ai vazut-o vreodata, dar in mod cert este cea mai practica, avand la dispozitie toate facilitatile necesare pentru a locui intr-un loc cat se poate de confortabil, in orie concediu.
E SC AP E este un simbol al unui stil de viata modern, unde energia este folosita si refolosita in mod eficient, intr-un stil minimalist, unde confortul se imbina cu un design interior extrem de reusit.
Sursa Foto: http://www.canoebayescape.com/

Poza 1

Poza 2

Poza 3

Poza 4

Poza 5

Poza 6

Poza 7

Poza 8

Poza Articol













