Intr-un decor neutru, minimalist, cu nuante calde, deschise, regasim accente viu-colorate, inspirate din natura, atat la nivel cromatic cat si ca textura si expresie vizuala. Este povestea unui apartament de trei camere din Moscova, situat in complexul rezidential Botanical Garden.
Deschide GaleriaClientii, un cuplu cu doi copii mici , sunt persoane calme , delicate; au fost dispusi sa experimenteze cu lumini , materiale si structuri, acordand maxima libertate creativa echipei de arhitecti. Au fost incantati inclusiv de solutiile mai curajoase ce le-au fost propuse: insertiile verzi, detaliile aurii, formele geometrice futuriste (plafonul si iluminatul general din hol).
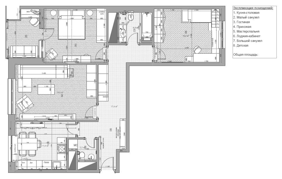
Apartamentul este dispus in forma literei ‘L’, fiecare camera avand acces din hol. Langa intrare este amplasat grupul sanitar si bucataria inchisa, livingul si apoi zona de noapte cu cele doua dormitoare despartite printr-o baie generoasa. Din dormitorul matrimonialse trece in logia care a fost amenajata ca birou.
Unul dintre trucurile folosite in amenajare este utilizarea oglinzilor in aproape fiecare zona pentru a mari vizual spatiul disponibil si a adauga un efect decorativ pretios. In dormitorul matrimonial au fost folosite oglinzi pe lateralele capataiului patului, in care se reflecta armonios tapetul de pe peretele opus.
Bucataria, mica si aparent inghesuita, este un spatiu compact insa extrem de eficient exploatat prin solutiile de mobilare adoptate si paleta cromatica folosita. Accentul este pus pe confort si o utilizare placuta a spatiului.
Glaful ferestrei din bucatarie ( fiind suficient de jos) a fost transformat in bancheta care deserveste masa de dining. Pe langa eficienta, s-a reusit conturarea unei atmosfere relaxante, prietenoase.
In camera copiilor a fost redata o atmosfera ludica, un spatiu de poveste, fara a deveni prea incarcat insa. Finisajul peretilor este din vopsea magnetica, o solutie ideala pentru copii. Optand pentru mobilier realizat la comanda, au reusit sa exploateze fiecare centimetru patrat, cu solutii de depozitare ingenioase.
Designer: Marya Design






































