Apartamentul de 109 mp a avut inca din start un set de cerinte functionale si estetice din partea proprietarilor, constituind baza pe care arhitectii au conturat conceptul general si detaliile de executie; comunicarea deschisa intre beneficiari si echipa de designeri a contribuit decisiv la succesul rezultatului final.
Deschide GaleriaProprietarii apartamentului sunt antreprenori, au propria afacere si lucreaza destul de des de acasa, in special sotia. In timp ce el este pasionat de fotbal si tehnologie, ei ii place sa picteze in timpul liber si sa faca sport; isi petrec impreuna serile cu un pahar de vin, la povesti. Au un copil de 2 ani si o pisica rasa Russian Blue, un membru important al familiei, pe care il iubesc foarte mult, astfel incat l-au luat si pe el in calcul in conceptul amenajarii noului apartament.
Necesitati si provocari functionale si estetice
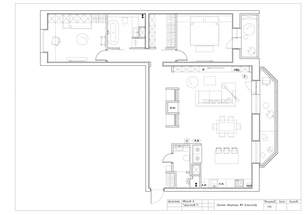
Lista de nevoi, cerinte estetice si functionale ale proprietarilor, care a devenit ulterior provocarea arhitectilor, a plecat de la premisa unui spatiu luminos, elegant si confortabil, care sa asigure fiecarui membru al familiei relaxare si posibilitatea desfasurarii activitatilor preferate. Printre cerinte s-au numarat: spatiu mixt bucatarie-dining-living; dressing separat de dormitor, cu sisteme generoase de depozitare; dulap pentru haine la intrarea in apartament; 2 bai (dintre care una cu cada iar a doua, pentru oaspeti, cu dus incastrat); acces catre balcon din living; o zona de lucru, relaxare si pictat pe balcon; loc de joaca in camera copilului cu posibilitatea transformarii facile intr-o amenajare de camera de adolescent; amplasarea unei vitrine de vinuri in open-space (vitrina achizitionata anterior); integrarea echipamentelor audio si video din colectia proprietarilor.
Conceptul arhitectural
Avand la baza cerintele proprietarilor, a fost propusa o atmosfera calduroasa, relaxanta si confortabila, cu materiale naturale (mult lemn, catifea, marmura), accente de patternuri si spatii generoase de depozitare. Pentru a crea senzatia unui spatiu mai inalt au fost folosite usi fara traverse superioare, pana in plafon. Din necesitatea unei bune izolatii fonice, peretii au fost ingrosati cu 7 centimetri, cu foi de gips carton pe ambele fete. Open-space-ul mult dorit a fost creat prin alipirea bucatariei de living, delimitate vizual de locul de luat masa. Baia de oaspeti, cu acces din hol, a fost marita, imprumutand din spatiul bucatariei, pentru a face loc cabinei de dus.
Un element special al amenajarii il constituie peretele despartitor, tip insula, intre holul de intrare si living, care poate fi perceput ca o sculptura integrata in open space, separand discret spatiile. Privit din hol, confera acces la un dulap de depozitare ,incastrat, in timp ce partea dinspre living este deschisa, cu rafturi pentru carti si vitrina de vinuri amplasata in axul peretelui.
Conceput in stil scandinav, la intrarea in living, pe peretele adiacent bucatariei, este amplasat spatiul de joaca si dormit pentru membrul-felina al familiei. Extrem de functional, ansamblul de case in miniatura constituie si un element de decor al intregii case, remarcat prin liniile geometricce si acuratetea finisajelor.
Scenarii de iluminat
O alta dorinta a beneficiarilor a fost includerea in conceptul amenajarii a unor scenarii de iluminat general si ambiental, care sa accentueze armonios mobilierul si decoratiunile. Au fost utilizate , astfel, profile cu benzi led, mai puternice, pentru iluminatul general al holului, si cu o lumina mai difuza, pentru accente in zona de noapte. Zona de zi este iluminata functional si estetic, cu ritmuri de spoturi incastrate si aplice suspendate, intr-un stil minimalist, geometric.
Materiale si finisaje
In afara peretilor cu accente decorative, a fost folosita vopsea lavabila alba, rigidizata cu plasa din fibra de sticla pentru evitarea crapaturilor. Parchetul Berlinek Oak Camel Grade confera unitate amenajarii si senzatia de caldura. Un accent decorativ spectaculos il constituie peretele stucco cu efect de beton din living, care pune in evidenta prin contrast restul amenjarii open-space-ului, mai sofisticat si elegant. Au fost alese placi de marmura pentru pardoseala de la inceputul holului si din bucatarie, acelasi tip de marmura alba fiind folosita si la backsplashul si insula-bar din bucatarie.
Camera copilului continua aceeasi linie stilistica a amenajarii generale, fiind utilizate aceleasi finisaje, mai putin pardoseala, care este din pluta ( mai moale si recomandata pentru copiii mici). Peretele media din camera copilului este finisat cu vopsea magnetica pentru a putea fi utilizat la diversele jocuri educationale.
Peretii si pardoseala baii matrimoniale sunt placati cu ardezie, interiorul fiind pus in valoare de oglinda mare si scafele de lumini. Baia de oaspeti este si ea placata cu ardezie, conturand un spatiu cu culori inchise pentru a crea mai multa intimitate. Peretele cu lavoarul este realizat din panouri de lemn, o tranzitie catre finisajul plafonului. Un mozaic de ardezie regasim pe tavanul cabinei de dus din aceasta baie.
Peretele interior al balconului pastreaza finisajul existent de caramida aparenta pentru a nu interveni la imaginea generala a fatadei.
Designeri: Geometrium









































