Intr-un spatiu de 53 metri patrati multe se doresc a fi implementate, putine se realizeaza. De cele mai multe ori, ne dorim zone mai multe de depozitare, dar, in realitate, nu prea stim cum sa facem asta. Viziunea profesionistului este, de multe ori, salvatoare.
Vom folosi cazul acestui apartament de doua camere, unde interventia designerului a dus la o transformare peste asteptarile beneficiarilor.
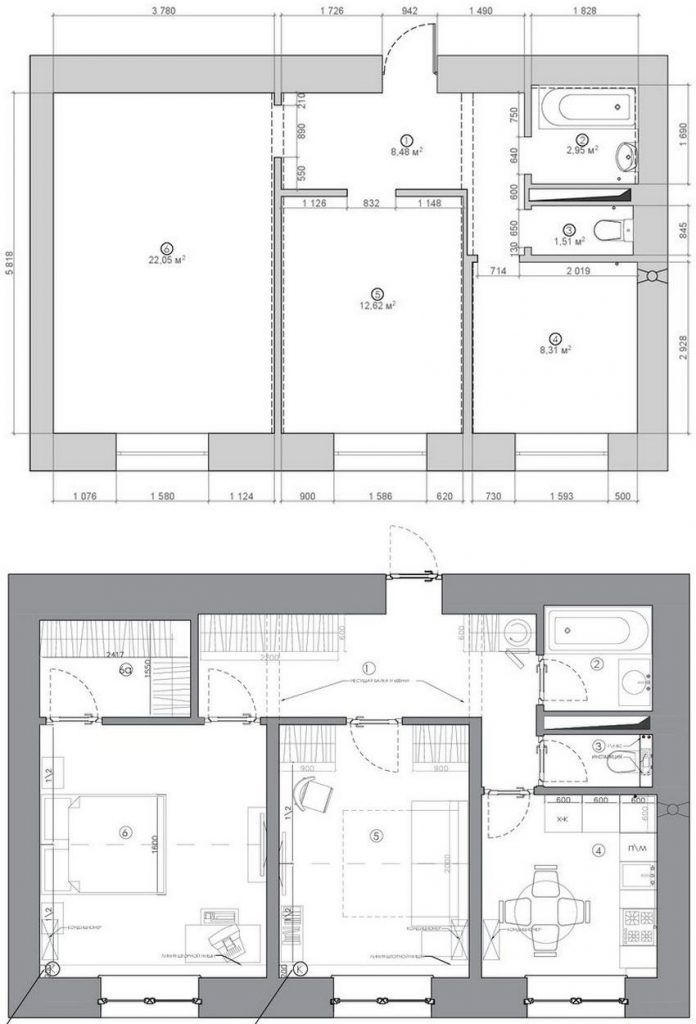
Deschide GaleriaUna din modificarile intreprinse in acest proiect a fost de a reduce suprafata dormitorului si amenajarea unei zone de dressing; modificand usa de la intrare in camera, holul a putut fi astfel usor largit. Lucrurile acestea au fost posibile datorita celor 22 de metri patrati initiali.
Pe langa dressingul din cadrul dormitorului, au mai fost inserate dulapuri si in living, de o parte si cealalta a usii, dar si in hol, pe aproape un intreg perete. Toate acestea s-au dovedit foarte utile, asigurand spatii eficiente si functionale pentru beneficiari.
Stilistic, amenajarea obtinuta vine intr-o abordare moderna, cu mici insertii retro, totul in nuante neutre, cuminti. Cu o eleganta discreta au fost conturate decorurile din fiecare zona in parte, piesele fiind alese cu atentie.
Amenajarea debordeaza de bun-gust; ne place cum au fost inserate cateva piese de mobilier retro care definesc in fapt tematica acestui proiect. Totul este armonios si placut creionat in fiecare incapere.
In ciuda dulapurilor integrate in spatiul livingului, spatiul nu pare sa sufere. S-a pastrat o mobilare sumara pentru a permite decorului sa respire. Canapeaua, corpul de biblioteca retro si cele doua masute suprapuse reprezinta piesele notabile ale incaperii. Cromatic, nuantele discrete de albastru si gri pastreaza totul intr-o nota serena, relaxanta.
Pentru bucatarie, amenajarea s-a dorit in acelasi spirit. Masa cu scaunele, dar si placile decorative de la nivelul pardoselii reusesc sa redea notele de retro tematice. Mobilierul este simplu, cu un design liniar si front alb, lucios. Dispusa pe doua laturi, bucataria primeste cele necesare pentru zone de lucru functionale.
Si dormitorul debordeaza de o eleganta discreta, in care biroul si scaunul, alaturi de masuta de la baza patului ne aduc din nou in prim-plan motivul retro al amenajarii. Peretele-accent creat cu riflaje scot in evidenta zona TV, iar de cealalta parte, peretele vopsit gri alaturi de tablouri aduc in centrul atentiei zona patului.
Corpul de iluminat, draperiile si covorul completeaza armonios decorul.
Spatiile din cele doua bai surprind prin cromatica, mai ales la nivelul pardoselii prin placile decorative care iti distrag atentia de la dimensiunile reduse ale celor doua incaperi.
Proiect: Porte Rouge Interiors













