Amenajarea pe care ti-o propunem astazi vine sub forma unui apartament de 3 camere cu un design functional si decor cu mult bun-gust.
Pentru a rezolva problema spatiilor mici, designerul care s-a ocupat de acest proiect a mizat pe mobilier personalizat, creat chiar dupa schitele sale. Astfel, fiecare zona a casei a fost optim folosita, creand spatii coerente si functionale.
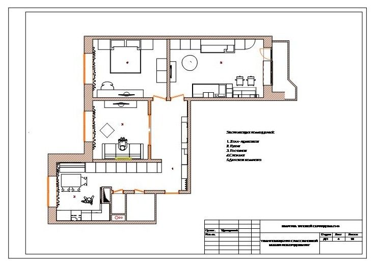
Zona de zi a fost conturata intr-un mod ingenios, mobilierul din bucatarie continuand in hol pana in living. O astfel de abordare a permis o buna folosire a spatiului, iar depozitarea este generoasa, atat in bucatarie, cat si pe hol. Este tot un fel de amenajare in plan deschis, dar cu o configuratie mai neobisnuita.
In bucatarie, spatiul pare a fi o prelungire a livingului, mai ales in partea amenajata cu bancuta si corpuri de biblioteca tip soldat. Acest tip de amenajare face ca bucataria sa fie mai putin un spatiu tehnic, si mai mult o zona de socializare pentru familie.
Toata incaperea este luminoasa, gratie spoturilor incastrate ce asigura un iluminat uniform, dar si celor incorporate in mobilier sporind luminozitatea la nivelul blatului de lucru. Culorile sunt deschise, calde, cu accente de maro-brun pentru a aduce un plus de profunzime decorului. Si electrocasnicele sunt incorporate in mobilier pentru a pastra un caracter unitar si ordonat in decor.
Pe toata lungimea holului, au fost proiectate dulapuri inalte pana in tavan pentru a optimiza spatiile de depozitare.
Livingul dezvolta aceleasi note blande, neutre, de bej in diferite tonuri, imprimand caldura camerei. Texturile variate aduc un plus de confort.
Dormitorul matrimonial a fost gandit in aceeasi nota functionala, insa cu mai mult accent asupra decorului. Peretele-accent, luminile, draperiile, designul mobilierului, toate inspira eleganta si bun-gust. In camera copiilor predomina culori pastelate, vesele care anima atmosfera, cu spatii de depozitare eficiente, birou pentru doi copii si paturi confortabile.
Designer: Anastasia Ufimtseva













