Povestea amenajarii acestei garsoniere a inceput prin creionarea unui concept modern si obtinerea unui aspect general masculin dar in acelasi timp tineresc, jovial.
Deschide GaleriaBeneficiarul, un tanar student, isi dorea un spatiu modern, elegant si in ciuda dimensiunilor reduse ale garsonierei, isi dorea sa aiba suficient spatiu pentru fiecare zona in parte.
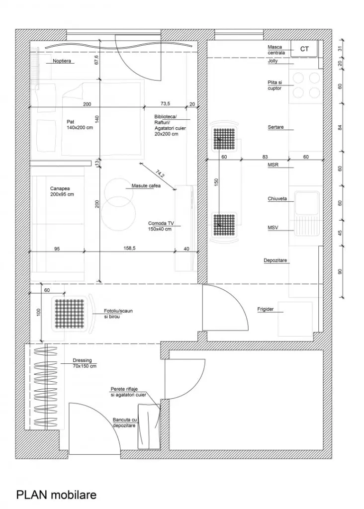
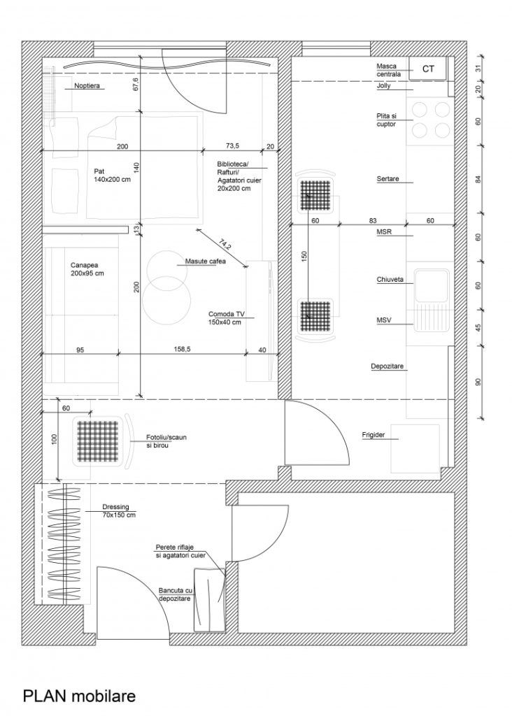
“Mai exact, trebuia neaparat sa existe o zona de studiu, un birou cu rafturi pentru cursuri, o zona de zi pentru relaxare si prieteni care vin in vizita, dar si o zona de seara, cat mai retrasa, care sa nu incurce fluxul din garsoniera. Si bineinteles, un dressing mare si spatii de depozitare. ”
Paleta cromatica propusa de arhitectul Andreea Stefancontine mult alb pentru a suplini absenta luminii naturale suficiente. Peretii, plafoanele, mare parte din mobila sunt albe; pe acest fundal ies in evidenta accentele de negru, albastru, oranj si peretele din spatele canapelei pe care regasim un tapet realizat la comanda prin The Home.
Garsoniera de 36 de metri patrati are o compartimentare clara: o zona comuna hol birou- living-dormitor , o bucatarie inchisa si baia. Pentru cele doua usi de interior au optat pentru varianta de usi filomuro (cu toc ascuns, la fata cu peretele) astfel incat acestea par mascate perfect.
Conditionati de forma dreptunghiulara a garsonierei, bucataria de 11 mp, desi generoasa ca suprafata, parea inghesuita astfel ca au propus o mobilare liniara si un mic loc de luat masa pe peretele opus.Fiind un spatiu cu dimensiuni reduse si din dorinta de a exploata ergonomic fiecare centimetru patrat, toate piesele de mobilier au fost realizate la comanda, dupa dimensiunile exacte ale fiecarei zone.
Un detaliu ingenios si foarte practic il constituie separarea zonei de zi de zona de dormit prin intermediul unor lamele de lemn rotative ; acestea pot fi lasate deschise pentru a permite luminii naturale sa treaca sau pot fi complet inchise pentru un plus de intimitate.
Fotografii: Bogdan Zop
































