In ultimii 15 ani, acest apartament de doua camere nu avusese parte de nicio imbunatatire, renovare sau o reamenajare cat de mica. Mama impreuna cu fiica sa adolescenta au hotarat ca este momentul pentru transformarea mult dorita. Iar rezultatul a fost peste asteptarile lor si am putea spune chiar si peste ale noastre. Nu rata imaginile din galeria de mai sus!
Deschide GaleriaCe au urmarit? Sa creeze spatii personale pentru fiecare in parte. Astfel, au renuntat la living pentru a fi transformat in camera fetei. Dormitorul a ramas in continuare spatiul mamei, iar bucataria a devenit locul lor de socializat, primit prieteni sau rude in vizita.
Pentru a pune in practica toate ideile pe care si le doreau implementate au apelat la ajutorul designerului; Natalia le-a ajutat sa contureze o amenajare moderna, eleganta, tinand cont de nevoile fiecareia in parte.
Apartamentul are acum o personalitate conturata intr-un stil eclectic. Vom regasi contraste intre negru si auriu, motive geometrice, corpuri de iluminat cu forme clar definite, combinatii de materiale – metal, caramida, piele, totul fiind dispus ordonat, fara o incarcare excesiva; vedem aceste trasaturi in special in dormitorul mamei.
Pentru camera fetei designul merge spre o linie mai industriala, discret redata.
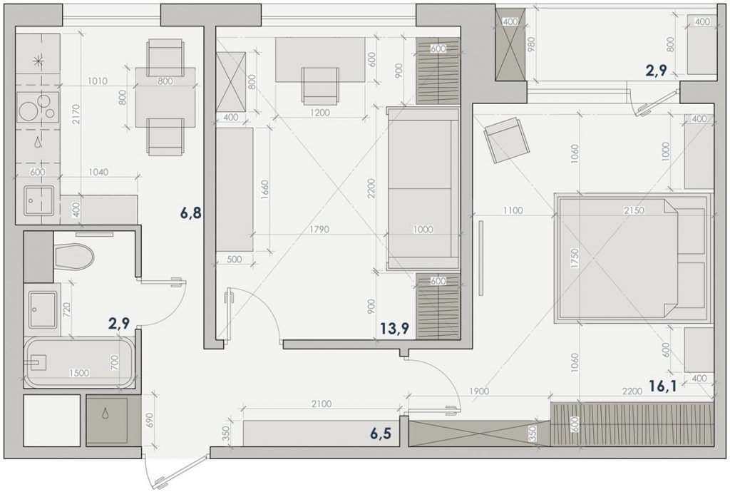
Crearea spatiilor de depozitare a fost o provocare in acest apartament de 50 metri patrati. Din hol si in fiecare camera in parte, Natalia a integrat zone care sa asigure loc pentru haine, incaltaminte, pana la masina de spalat rufe. Chiar si in balcon, in cele doua capete au fost montate un dulap, respectiv o comoda.
Pe langa atentia pentru a crea spatii functionale, decorarii apartamentului i s-a acordat o atentie sporita. Unul din primele lucruri care iti atrag atentia este fototapetul din hol cu un peisaj urban. Montarea oglinzii pe peretele paralel pentru a reflecta aceasta imagine nu este intamplatoare.
Apoi, tablourile si accesoriile pe care le regasim in fiecare camera in parte aduc o nota de original acestui spatiu.
Mobilierul inchis din bucatarie este balansat de finisajele in tonuri neutre, pastrand astfel luminozitatea camerei. Cele doua randuri de dulapuri din partea superioara a bucatariei asigura o depozitare cat mai ampla.
Dormitorul mamei iese in evidenta prin notele elegante ale decorului. Functionalul si esteticul se imbina excelent pentru a descrie un spatiu rafinat si armonios. Designerul a reusit sa integreze o biblioteca, un dressing, noptiera si comoda, ambele dispuse simetric de o parte si cealalta a patului, dar si un mic colt de lectura (vezi scaunul si lampadarul).
In baie, se merge pe o linie geometrica (vezi dispunerea placilor de faianta). Placarea ceramica exista doar in zonele de stropire, in partea superioara fiind folosita o vopsea gri mat potrivita pentru spatiile umede.
O amenajare care trebuie vazuta in fiecare detaliu al sau!
Designer: Natalia Shirokorad













