Aceasta poveste cu iz scandinav incepe prin dorinta bloggerul Larisa Gavrilova de a-si amenaja locuinta mult visata pentru cei patru membri ai familiei sale. Cu un buget redus la dispozitie, au facut o renovare, insa au apelat la un designer de interior pentru solutia de compartimentare.
Deschide Galeria Apartamentul de doua camere si 40 de metri patrati se afla intr-un bloc construit in 1968 si nicio renovare majora nu fusese facuta de atunci. Initial, apartamentul avea o bucatarie micasi un coridor ingust, iar baia era separata de grupul sanitar.
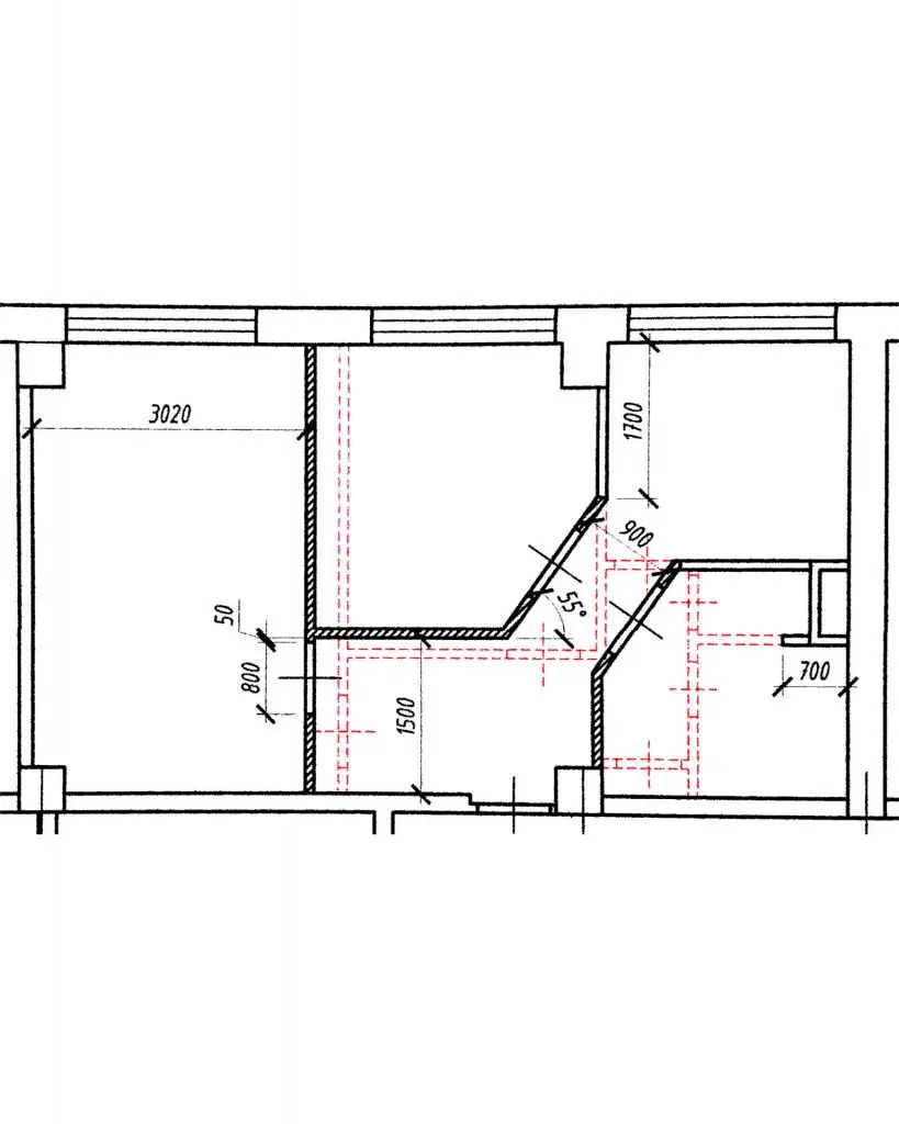
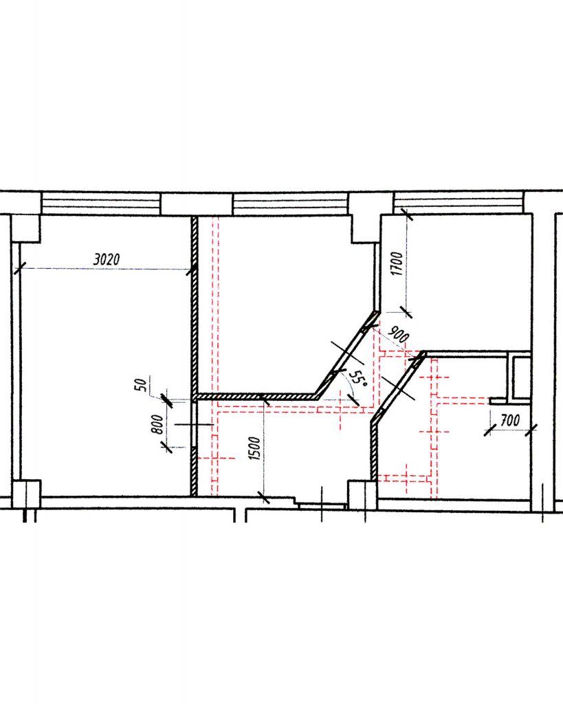
Profitand de faptul ca nu existau pereti structurali de compartimentare, au modificat raporturile de suprafata intre camere, adaptate la nevoile lor actuale. Solutia de acces in bucatarie printr-un gol de trecere dispus intr-un perete la 45 de grade, lasa lumina naturala sa patrunda in hol.
Noua compartimentare a permis alocarea unui spatiu generos pentru dulap in dormitorul matrimonial; crearea unei bai de cinci metri patrati cu cada, masina de spalat rufe cu uscator, dus pentru vasul de wc; si un dormitor de copii extrem de versatil.
Proprietara ne povesteste ca “in timp ce ne conturam interiorul mult visat, am fost inspirata de poze de pe Pinterest, la fel ca multi alti utilizatori, si ne-am bazat pe preferintele si viziunea noastra despre cum ar trebui sa arate locuinta in final.”
“Am vrut ca interiorul sa transmita calm, lejeritate, sa nu ne plictiseasca dupa o vreme si sa ne confere un sentiment placut de fericire si confort.” Iar rezultatul acestei amenajari este dovada clara ca indiferent de suprafata in metri patrati a unei locuinte, este posibil sa conturezi acel sentiment de “acasa”.
Caracteristica principala a interiorului: asocierea materialelor si finisajelor scumpe cu cele de buget. Proprietarii au fost extrem de chibzuiti cu fondurile alocate acestui proiect: au combinat piese de mobilier de la Ikea cu mobilier realizat la comanda. Au cautat in permanenta obtinerea unui echilibru intre estetic si functional.
Design si foto: Larisa Gavrilova




















bucataria inainte de renovare

holul inainte de renovare














