O amenajare moderna, cu multe accente de culori intense, plina de viata, care sa asigure tot confortul necesar in doar 35 de metri patrati. Asa incepe povestea amenajarii unui apartament al carui designer de interior este si proprietarul, in acelasi timp.
Pornind de la spatiul existent, care initial parea neincapator, apartamentul a trecut printr-un proces de renovare si compartimentare pentru a asigura o comunicare mai buna intre zonele locuintei si a crea senzatia unui spatiu amplu.
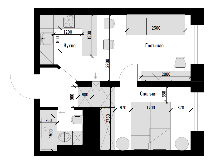
In urma compartimentarii eficiente a rezultat un hol cu acces catre baie, un open space (compus din bucatarie in forma de U, living si un mic birou) si un dormitor complet echipat. Suprafata holului de intrare a fost micsorata pentru a aloca astfel mai mult spatiu zonei de zi.
Designerul, o doamna eleganta, foarte atenta la micile detalii, a vizat crearea unei atmosfere calde, relaxante, intr-un cadru arhitectural modern, cu insertii de piese decorative care pun in valoare spatiul.
Cu un buget restrans, a acordat o atentie sporita alegerii unor finisaje placute si rafinate dar care sa se incadreze in limitele impuse. O mare parte din mobilier, materialele textile si micile obiecte decorative au fost achizitionate de la Ikea iar piesele de mobilier incastrate au fost realizate in ateliere locale, dupa schitele proprii.
Exceptand baia, finisajul pardoselii este continuu, din parchet laminat, ceea ce face spatiul sa para mai mare. Usor de intretinut, parchetul laminat reprezinta o solutie buna inclusiv pentru bucatarie.
Peretii au fost finisati cu vopsea lavabila in nuante calde de gri si roz prafuit; peretele din spatele patului a fost accentuat printr-un tapet cu motive vegetale, intr-o nuanta relaxanta de albastru deschis. Plafoanele au fost pastrate cat mai simple, vopsite alb mat si retrase fata de ferestre pentru a crea o nisa functionala pentru mascarea sinelor de draperie.
Dormitorul dispune de o depozitare generoasa, un dulap incastrat, cu o lungime de aproape trei metri. Din cauza dimensiunii reduse dintre dulap si pat, au optat pentru usi glisante, placate cu oglinda care amplifica vizual spatiul. Dulapul din hol, incastrat in nisa creata intre accesul in baie si cel catre zona de zi, mascheaza masina de spalat rufe.
Spatiul alocat bucatariei a fost exploatat la maxim, dulapurile suspendate, cu inaltimea pana in grinda asigura suficient loc de depozitare. Pentru relocarea scurgerii din bucatarie si crearea unei pante corespunzatoare a fost necesara inaltarea pardoselii din bucatarie fata de cea din baie.
Placarea portiunii de perete dintre blatul de lucru si mobilierul suspendat, cu ceramica viu colorata si un tipar modern contribuie la atmosfera rafinata a zonei de zi. Aceleasi placute de ceramica au fost preluate si folosite pentru a inveseli una din fetele de sertar ale biroului din living.
Designer: Tatyana Ivanova
Foto: Julia Vlasova













