Daca te numeri printre cei care indragesc eleganta si rafinamentul stilului clasic, cu siguranta o abordare moderna a acestuia va fi una din alegerile principale atunci cand vei lua in calcul transformarea propriei locuinte.
Si, pentru ca in acest caz vorbim de apartamentul unei familii tinere cu doi copii, provocarea devine si mai mare atunci cand stilul ales trebuie sa respecte preferintele fiecarui membru si sa le delimiteze prin atribuirea unui spatiu personal.
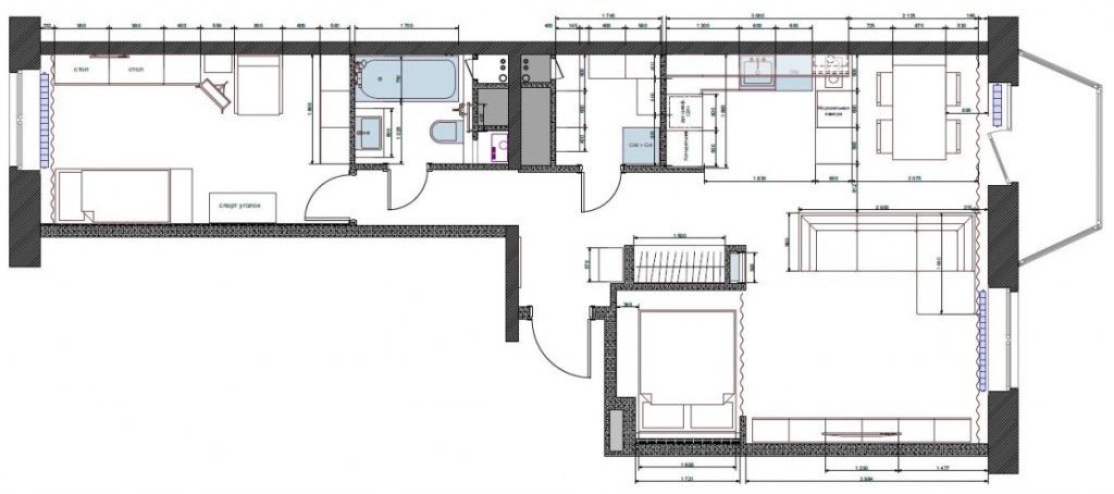
Demonstratia cea mai evidenta de functionalitate a intregii amenajari este compartimentarea intregului apartament prin transformarea acestuia dintr-un apartament cu doua camere intr-unul cu trei camere. Paleta cromatica, design-ul mobilierului si accesoriile contopesc trei caractere diferite intr-unul singur: feminitate, masculinitate si inocenta.
Spatiul deschis format din bucatarie si living aduce in compozitia sa zona de odihna, incastrand dormitorul matrimonial. Separarea se face cu ajutorul unei draperii care permite ascunderea acestuia in momentele in care living-ul se dedica socializarii si primirii oaspetilor.
Cromatica se bazeaza pe nuante de crem, gri si alb in ideea maririi vizuale a spatiului dar si a pastrarii unei linii elegante si fine ce contureaza accentele clasice. Zona de pregatire a mesei se distinge prin simplitatea mobilierului si iluminarea exacta.
Un spatiu larg, invaluit in lumina naturala, zona de relaxare contopeste doua planuri temporale punand laolalta componente moderne si componente cu aspect retro. Aici se fac remarcate un coltar extensibil, un fotoliu, o masa de cafea, si o biblioteca ce respecta patternul mobilierului bucatariei.
Accesorizarea se face in linii fine, cu accente feminine, prin adaugarea florilor decorative, a tablourilor si bibelourilor.
Dormitorul ascuns ne prezinta ideea de familie, grup si uniune, devenind inevitabil cartea de vizita a beneficiarilor acestei amenajari prin amplasarea murala a unui numar impresionant de fotografii personale.
Camera de tineret este spatiul dedicat celor doi copii ai familiei. Alegerea culorilor se identifica inevitabil cu cei mici sugerand clar faptul ca acolo regasim spatiul de odihna si recreere al unei fetite si unui baietel. Simplitatea mobilierului atat in ceea ce priveste structura sa, cat si coloristica, permite adaugarea de nuante vii murale sau in accesorii.
Albul, beige-ul si lemnul natural dau prospetime si naturalete camerei, iar patul suprapus, jucariile si desenele personale inramate, ofera inocenta de care are nevoie acest spatiu pentru a completa armonios povestea intregii amenajari.
Designer: Flat Design













