Amenajat pentru o familie tanara, cu un copil mic, apartamentul de doar 47 de metri patrati spune o poveste deosebita: indiferent de dimensiunea locuintei, alegerea unor finisaje, materiale potrivite si organizarea eficienta a pieselor de mobilier pot sa transforme spatiul intr-un camin placut si ergonomic.
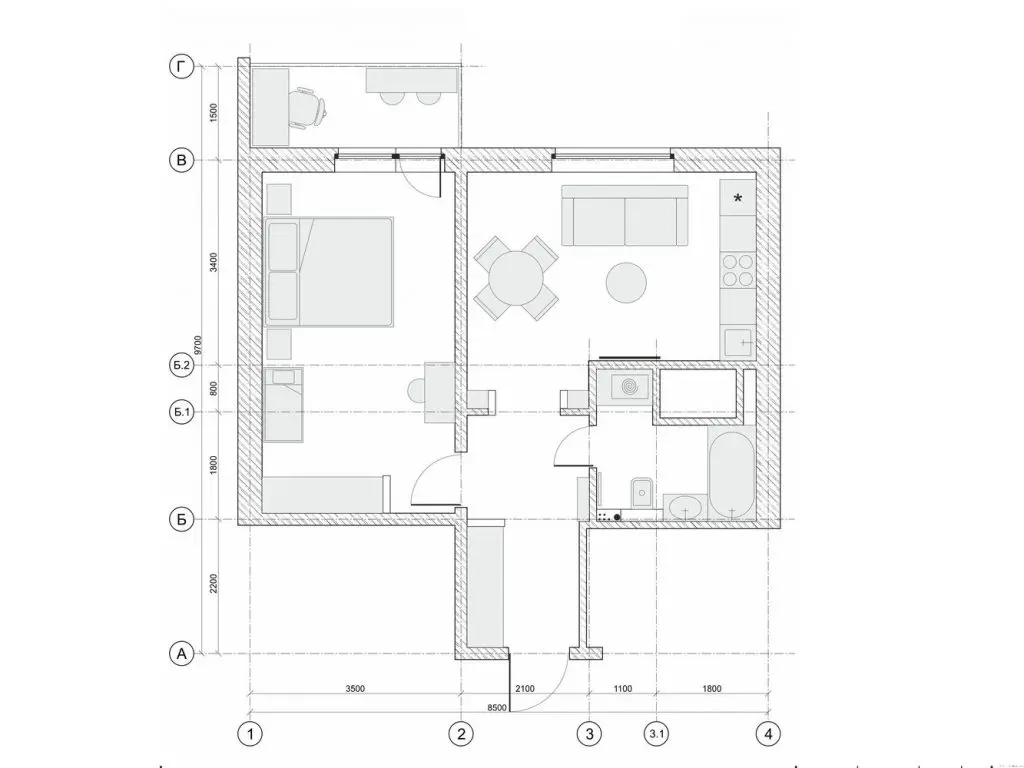
Deschide GaleriaInitial apartamentul avea o singura camera si o baie insa clientii si-au dorit sa imparta suprafata apartamentului intr-o zona de zi si una de noapte intr-un raport echilibrat. Prezenta unui perete portant in centrul locuintei nu le-a lasat prea multe variante de compartimentare.
Zona de zi, compusa din bucatarie minimalista, living si dining, formeaza un open space functional si foarte primitor; prin holul de intrare se poate vedea partial din aceasta zona; masa de dining fiind un capat de perspectiva elegant.
Pentru zona de noapte au optat pentru o camera dreptunghiulara in care au amplasat patul matrimonial si o canapea extensibila pentru copil. Pe langa pat se intrezareste accesul catre un balcon transformat in spatiu de birou. Prezenta plantelor aici contureaza o atmosfera placuta, relaxanta si adauga spatiului o nota exotica.
Denis Tarasenko, designerul acestui proiect, ne povesteste ca “interiorul este construit in baza unei combinatii armonioase intre vechi si nou: cosuri vechi ale strabunicului sotiei, fotoliul din living restaurat pentru acest proiect, mici figurine mostenite de la strabunici. Restul mobilierului este nou.
Multe piese de decor au fost achizitionate din calatorii.” Picturi ale artistului Anastasia Limonova decoreaza peretii, venind in completarea stilistica a locuintei.
Paleta cromatica neutra si accente luminoase, deschise, in culorile apusului, sunt elemente definitorii ale acestei amenajari. Peretii erau pregatiti pentru vopsit de la dezvoltator; in living au fost adaugate accente de roz intens si liliac iar in dreptul tabliei patului a fost aplicat un tapet geometric.
Bucataria este amplasata intr-o nisa, in spatele camerei de zi; fiind indeajuns de incapatoare pentru prepararea meselor zilnice. Pentru backsplashul bucatariei si placarea peretilor din baie au fost folosite placi dreptunghiulare tip caramida Kerama Marazzi.
Baia, complet echipata cu vas de toaleta, cada, chiuveta, masina de spalat rufe, a necesitat cateva modificari la instalatia sanitara astfel incat sa corespunda noilor cerinte. Corpul de mobilier roz -prafuit , cu trei sertare incapatoare, este pata de culoare binevenita in decorul alb-gri deschis al baii.
Design: Denis Tarasenko
Foto: Natalia Gorbunova



































