Iti spuneam intr-un articol precedent despre o amenajare de apartament cu o suprafata de 37 de metri patrati (vezi aici amenajarea). Desi cu totii ne dorim spatii mai mari si mai generoase pentru locuintele noastre, nu intotdeauna reusim sa ne indeplinim acest vis. Si atunci intervenim noi, oferindu-va idei si sugestii pentru inspiratie.
Apartamentul de 2 camere despre care vreau sa iti vorbesc astazi este locuit de o familie cu un copil mic. Pentru ca nu erau siguri de cum vor aborda amenajarea, proprietarii au apelat la designerul de interior Maria Mahmudov. Si-au dorit ca spatiul sa fie unul confortabil, vesel, luminos, functional, cu alte cuvinte, un camin primitor.
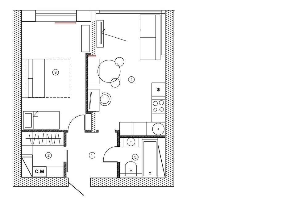
Functionalitate cheia unui spatiu mic
Zona de zi
Bucataria este simpla si face parte din aceeasi camera. Cu o configuratie tip L, spatiul pentru gatit atrage privirea prin acel joc de figuri geometrice aplicate pe placile ceramice. Asortarea cu o parte a decoratiunilor este chiar placuta vizual.
De remarcat simplitatea elementelor si armonia pe care Maria a reusit sa o contureze luand in calcul spatiul mic pe care l-a avut la dispozitie. Tiparul geometric se regaseste discret in fiecare zona – pe canapea sub forma pernelor decorative, pe lada, tapiteria scaunului de birou si placile ceramice din bucatarie.
Toate au menirea de a crea zone de interes si de a reflecta o anumita coerenta a spatiului, in conditiile unui alb predominant.
Dormitor si baie
In baie, Maria a mers pe un stil jucaus si vintage in acelasi timp. Rama oglinzii, recipientul pentru sapun lichid, suportul pentru periute impreuna cu blatul lavoarului sunt piesele de rezistenta ale acestei bai. In aceeasi masura, iti vor placea placile colorate in stil patchwork si lavoarul pictat absolut superb! Cea mai frumoasa baie mica pe care am vazut vreodata!
Chiar si intr-un spatiu mic poti sa faci o amenajare cu stil, iar acest apartament e dovada vie ca si tu poti sa iti construiesti locuinta de vis trecand peste orice prejudecati! Spor la amenajat!
Sursa foto:inmyroom



























