Cand locuiesti intr-un apartament mic, esti nevoit uneori sa apelezi la solutii usor neobisnuite pentru a spor confortul; si nu ne referim la eliminarea peretilor, de multe ori o practica abordata gresit si mai ales abuziv. Ceea ce am intalnit in acest apartament ni se pare deopotriva functional, eficient si foarte bine integrat in ansamblul amenajarii. Detaliem in cele ce urmeaza.
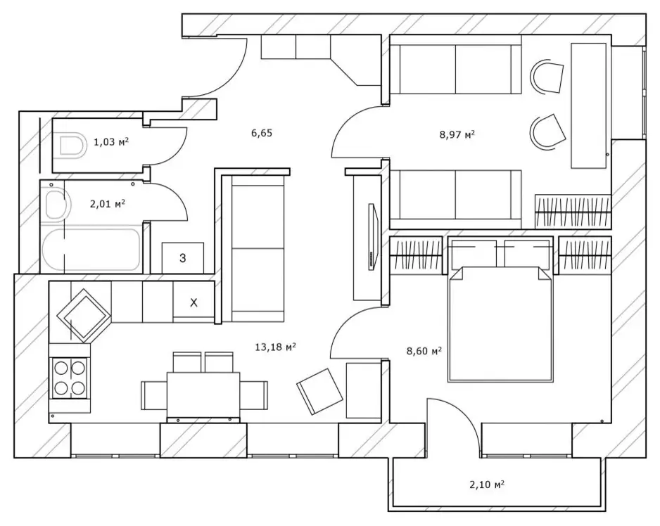
Spatiul initial, configurat ca un apartament de 2 camere, s-a transformat intr-unul de 3 camere, avand astfel 2 dormitoare. Solutia de compromis a fost transformarea livingului. Nu, acesta nu a disparut complet din functionalitatile locuintei, ci a fost reamenajat in spatiul holului, destul de larg cat sa permita integrarea unei canapele si a unei comode pentru televizor.
Bucataria a ramas in acelasi loc, doar ca a fost deschisa spre camera nou conturata, astfel creand un open space luminos si mai ales functional. Trecerea inspre living se face discret prin amenajarea locului de luat masa. Exista amenajat chiar si un mic spatiu pentru birou.
Suprafata apartamentului este destul de redusa, in jur de 45 de metri patrati. Cu toate acestea, spatiul ofera beneficiarilor confortul necesar si chiar spatii de depozitare foarte utile.
Paleta de culori deschisa reuseste sa invioreze atmosfera: verde, galben, putin turcoaz, toate pe fundal de alb si crem. Culorile vii reusesc sa distraga atentia de la dimensiunile reduse ale spatiului, oferind un aer primavaratic si vesel in special in zona spatiilor comune.
Ne-a atras atentia modelul discret al tapetului, o baza perfecta pentru a permite verdelui sa straluceasca ca accent in decor. Draperiile ies in evidenta tocmai prin culoarea accent aleasa.
Dupa cum vei putea vedea in schita pe care am atasat-o la finalul galeriei foto de mai sus, la intrare in locuinta au fost integrate spatii de depozitare, absolut necesare pentru orice familie cu 2 copii (acestea nu au fost cuprinde in fotografii).
Dormitorul matrimonial are aproximativ 9 metri patrati, excelent valorificati. In locul noptierelor, de o parte si de alta a patului, au fost integrate 2 dulapuri pentru hainele fiecaruia din parteneri. Usile sunt placate cu oglinzi pentru a reflecta lumina si a crea impresia de spatialitate. Nisa amenajata deasupra patului ofera un plus pentru a expune diferite decoratiuni.
Iluminatul este asigurat prin spoturi incastrate. Culorile folosite sunt predominant neutre, cu bej si esente de lemn care incalzesc spatiul si inspira relaxare.
Camera copiilor este gandita cat mai practic posibil: 2 paturi paralele, dulap pentru haine si un birou amenajat la fereastra. Finisajul in degrade de pe pereti amplifica spatiul, iar nuantele inveselesc incaperea.
In ciuda spatiului mic, ideile dezvoltate in aceasta amenajare te vor inspira cu siguranta. Speram sa-ti fie de folos imaginile pe care le-am atasat in galeria foto!
Sursa foto:nw-interior

























