Aceasta familie cu 2 copii a avut nevoie de ajutorul profesionistilor pentru a-si amenaja noul apartament de 65 metri patrati. Si-au dorit un spatiu optimizat, care sa le ofere confortul dorit.
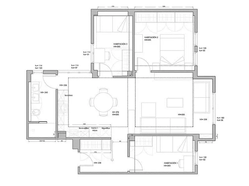
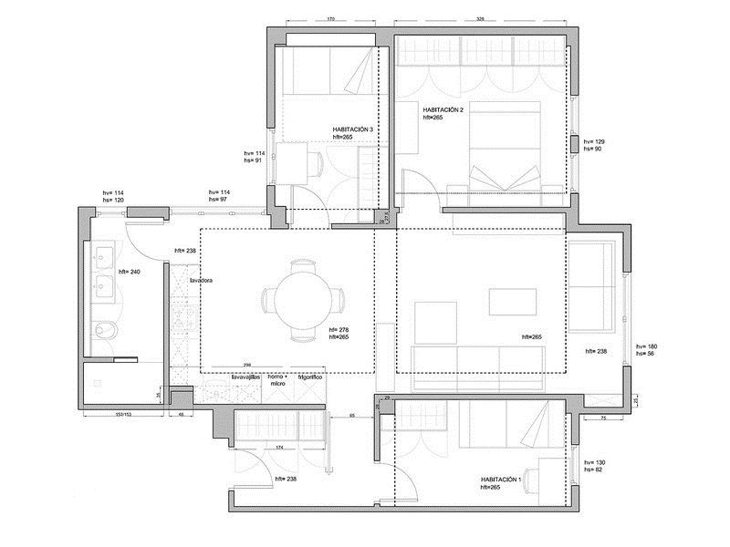
Ce a facut designerul impreuna cu echipa sa? Primul pas a fost redistribuirea functiunilor sau mai bine zis, crearea unei zone de zi compacte, in plan deschis, reunind livingul, bucataria si o zona pentru luat masa. Pentru a obtine acest lucru, au fost eliminati peretii care nu afectau structura de rezistenta a imobilului. Acum spatiul este fluent si mai luminos.
Amenajarea urmeaza linia unui design minimalist, unde au fost integrate piesele de mobilier de baza, pastrand astfel spatiul cat mai aerisit. In acelasi scop, s-a folosit mult alb alaturi de o nuanta de lemn natur ce ofera caldura spatiului, echilibrand cromatic decorul.
Dupa cum vei vedea si in fotografii, designerul a oferit familiei o amenajare de baza pe care ei ulterior o pot personaliza dupa nevoi. De aceea, este posibil ca apartamentul sa ti se para neterminat sau lipsit de personalitate.
Daca iti doresti sa amenajezi un spatiu similar, mizeaza pe ideile pe care le regasesti aici, caci iti pot fi o sursa utila atunci cand vei dori sa abordezi o renovare pentru apartamentul tau.
Sursa foto: micasa
















Planul apartamentului inainte de amenajare

Planul apartamentului dupa amenajare










