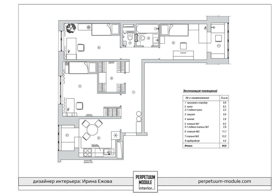
Apartamentul de 65 de metri patrati este compus din 3 dormitoare, o bucatarie confortabila, doua bai si spatii de depozitare generoase.
Deschide GaleriaProprietarii, o mama cu doua fiice, ambele la liceu, sunt persoane pasionate de bricolaj, dansuri si sport. Printre dorintele lor initiale se numara: absenta televizorului, crearea unui spatiu de lucru pentru mici proiecte de bricolaj, amenajarea dormitoarelor cu canapele extensibile dar cu saltele ortopedice pentru a economisi spatiu.
La nivel de compartimentare interventia a fost una minima. S-a propus inlaturarea partitiei dintre coridor si living, au fost amenajate doua bai complet echipate, o parte din spatiul primului dormitor a fost sacrificata pentru organizarea unei camere de depozitare a hainelor.
Luand in calcul dorintele clientilor, conceptul arhitectului se inspira din stilul Boho, cu decoratiuni din abundenta, accente ornamentale de mici dimensiuni si materiale textile in culori puternice, contrastante.
La nivel cromatic, pentru finisajele peretilor a fost aleasa o gama de culori deschise, cu personalitate, accentuand fiecare zona in parte: o nuanta de gri deschis marcheaza holul de intrare, coridorul si bucataria; in dormitorul matrimonial s-a folosit o nuanta de verde pastelat; dormitorul mezinei a fost tratat intr-o nuanta de bej iar cel al fiicei mari in tonuri de albastru deschis.
Proprietarul a dorit sa evite culoare alb, astfel ca tavanele, plintele si usile au fost alese cu o tenta de crem.
Camerele fiind mici, nu s-a dorit incarcarea lor cu piese de mobilier de depozitare si cum holul era destul de ingust si neincapator pentru dulapuri, designerul a alocat spatiu pentru o camera dedicata depozitarii.
Amenajarea completa a celei de-a doua bai a pornit de la dorinta beneficiarilor de a le asigura oaspetilor tot confortul. Oglinda din baie mareste vizual spatiul iar peretele care mascheaza rezervorul incastrat inglobeaza si un corp de mobilier foarte practic.
Blatul de bucatarie continuu asigura o suprafata de lucru mare si confera eleganta bucatariei care are si rol de camera de zi, in lipsa unui livingroom. Backsplashul a fost finisat cu placi ceramice de accent, cu model geometric, ceea ce personalizeaza armonios si cu stil intreaga bucatarie.
Pentru zonele de tranzit si pardoseala din spatiile umede a fost folosita gresie portelanata: cu model geometric in holul de intrare, uni pentru pardoseala bailor si cu textura de lemn in restul zonelor. Dormitoarele au o pardoseala din parchet stratificat pentru a genera confort si senzatia de caldura a spatiului.
Combinarea pieselor de mobilier din magazine cu cele realizate la comanda a fost o idee eficienta de optimizare a bugetului si de a conferi personalitate amenajarii. Designerul relateaza ca mobilierul de bucatarie este realizat din module standard si cateva piese la comanda.
Comoda Thimon de la Idea Factory este un produs de serie cu posibilitatea de a fi personalizat. In acest mod, poti obtine un obiect de calitate individualizat la costul unui produs de serie, avand posibilitatea alegerii esentei de lemn si a culorilor in orice combinatie.
Beneficiarul colectioneaza figurine din portelan, obiecte mostenite, iar pastrarea si expunerea lor la vedere in cadrul amenajarii era importanta. Tocmai de aceea proiectantul a optat pentru un stil de amenajare flexibil, care poate incorpora oricand obiecte de decor dragi.
Designer:Perpetum Module
Foto: Evgeny Evgrafov



































