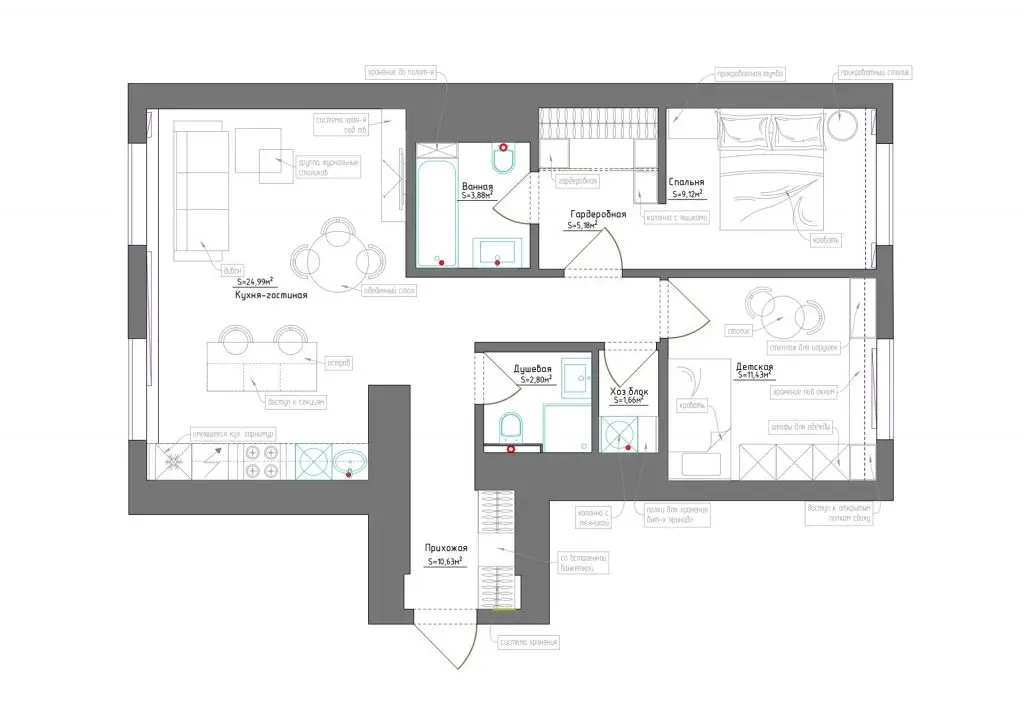
Apartamentul de 72 de metri patrati dispune de trei camere si doua bai, cu o inaltime generoasa a spatiilor de 2.80 metri. Povestea amenajarii incepe de la preluarea apartamentului de la dezvoltator, cu toate finisajele finalizate, inclusiv bucataria cu electrocanicele montate.
Deschide GaleriaRolul echipei de design interior la care a apelat beneficiarul a fost acela de a conferi personalitate spatiului. Au transformat astfel un spatiu gri, monoton, intr-o locuinta confortabila si calduroasa. In cea mai mare parte, au intervenit prin piese de mobilier si accesorii, decoratiuni textile.
Conform designerilor implicati in procesul amenajarii, “conceptul a fost elaborat tinand cont de bazele stilurilor eco si minimalist, dar in acelasi timp, fiecare detaliu este incarcat cu imagini subtile si cu intelegerea faptului ca acest apartament este pentru o familie tanara care isi iubeste locuinta.”
Clientii, familie tanara (o doamna cu un copil mic) calatoresc foarte mult, locuind in Londra si Moscova. Pentru locuinta din Moscova si-a dorit un apartament amenajat in detaliu care sa confere senzatia de caldura si de “acasa”.
A apelat la Balcon Studio in momentul in care a achizitionat apartamentul finisat, cu electrocasnice, bucatarie si baile complet echipate.
Apartamentul are o delimitare clara a zonei de zi si cea de noapte. Zona de zi este amplasata in stanga holului de intrare iar zona de noapte si baile sunt in dreapta.
Spatiul este compus din living si bucatarie deschisa, un hol de intrare generos, o baie cu dus amplasata langa intrare, o camera mica- spalatorie, dormitorul copilului si un dormitor matrimonial cu dressing si baie privata.
Dormitorul matrimonial este pus in valoare prin peretele din spatele patului, pe care au fost aplicate niste profile decorative discrete, vopsite in acelasi ton de gri. “Ne-am hotarat la o paleta cromatica deschisa, cu tonuri de culori prafuite plus albastru navy si tonuri ciocolatii.”
Dressing-ul din dormitorul matrimonial are forma de L; este delimitat printr-o partitie de sticla,ceea ce mareste vizual spatiul iar in acelasi timp protejeaza hainele.
Dormitorul copilului are doar 11 metri patrati, insa a fost foarte eficient organizat astfel incat sa existe si loc de depozitare suficient, loc de joaca si de odihna. Una dintre dorintele mamei a fost sa creeze o zona de bancheta, moale, confortabila, langa geam; a rezultat o piesa de mobilier unitara, cu spatiu de depozitare inchis si spatii de expunere deschise.
Conceptul bucatariei a fost realizat de biroul italian de arhitectura Mantra si produsa de Stylish Kitchens. In cadrul amenajarii locuintei, au fost inlocuite fronturile cu unele din mdf vopsit si cant frezat (inlocuind manerele aplicate). Iluminarea cu benzi led sub corpurile suspendate este o solutie eficienta pentru mai multa lumina in zona de lucru.
Elementul vedeta al zonei de zi il constituie scaunul roz pudra cu picioare aurii, achizitionat de la un producator italian.
Design: Balcon Studio
Foto: Olga Melekestseva


































