Designerul Anastasia Bondareva a indeplinit in aceasta amenajare toate dorintele unei familii tinere: de la semineul integrat in mobilierul de living pana la bancheta amplasata la geam, loc numai bun de visat si relaxat.
Deschide GaleriaApartamentul de 3 camere si 74 de metri patrati a primit o noua infatisare, una moderna si foarte stilata, eleganta, cu o bucatarie alb lucios, inalta, dressing in dormitor si o priveliste uimitoare asupra orasului.
Clientii, un cuplu tanar, recent casatorit, au propriile afaceri si calatoresc mult; in timpul liber prefera sa citeasca o carte buna sau sa ia cina cu prietenii. Sunt adeptii stilului modern , cu usoare accente clasice si insertii de culori pastel calde.
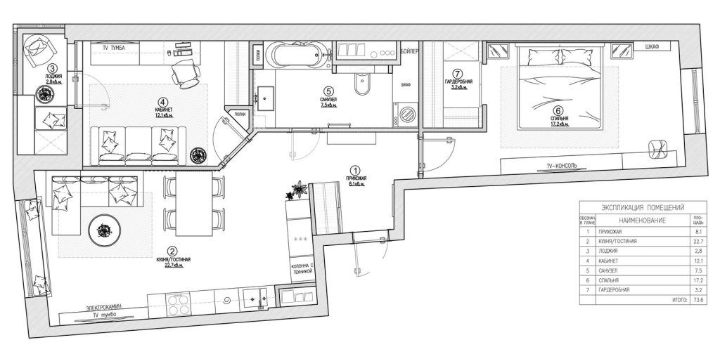
Apartamentul are o forma alungita, trapezoidala, cu geamurile dispuse pe laturi opuse, in dormitor si open space. Compartimentarea a creat o delimitare clara a celor doua zone, de zi si de noapte.
In dreapta intrarii este amplasat dormitorul matrimonial, cu dressing propriu si zona de studiu iar in stanga a fost amenajat spatiul comun living- bucatarie, dining. A treia camera , adiacenta livingului, este momentan amenajata ca birou, in viitor va fi camera copilului.
Designerul a contribuit prin materialele, culorile si finisajele folosite sa imblanzeasca formele neregulate ale apartamentului, astfel incat sa nu fie percepute atat de dur toate colturile si unghiurile ascutite. Incercand sa distraga atentia de la neparalelismul peretilor, parchetul a fost dispus la 45 de grade, ceea ce ii confera si dinamism spatiului si contribuie la atmosfera moderna a locuintei.
Conform dorintelor beneficiarilor, au fost create multe spatii de depozitare. In birou a fost creat un dulap mare cu usi glisante si o vitrina de colt din sticla, pentru expunerea suvenirurilor din calatorii. Comoda de tv a fost creata ca o prelungire a biroului , integrand armonios cele doua zone.
Locul de luat masa este puternic marcat prin candelabrul impunator si peretele decorat cu profile decorative intre care sunt intercalate spoturi de lungimi diferite ce creeaza o dinamica inferesanta si un efect luminos placut in timp ce accentueaza importanta zonei.
In logie a fost creata o zona de recreere, unde te poti bucura de priveliste, avand geamuri panoramice. Nisa cu bancheta cu sezut si spatar din catifea asigura mult spatiu de depozitare si locul perfect de relaxare; designerul povesteste ca foloseste des acest truc in amenajarea balcoanelor.
Pentru zona de noapte a fost sugerata crearea unei compozitii asimetrice: in stanga patului sunt dispuse corpuri de iluminat suspendate din plafon in timp ce in dreapta regasim o veioza din aceeasi familie de lampi, dispusa pe noptiera eleganta.
Design: Anastasia Bondareva
Foto: Alexey Bunakov









































