Un interior luminos, plin de viata si confortabil pentru a fi locuit au fost dorintele clientilor in momentul in care au decis sa apeleze la arhitecti pentru a transforma apartamentul de doua camere in trei camere.
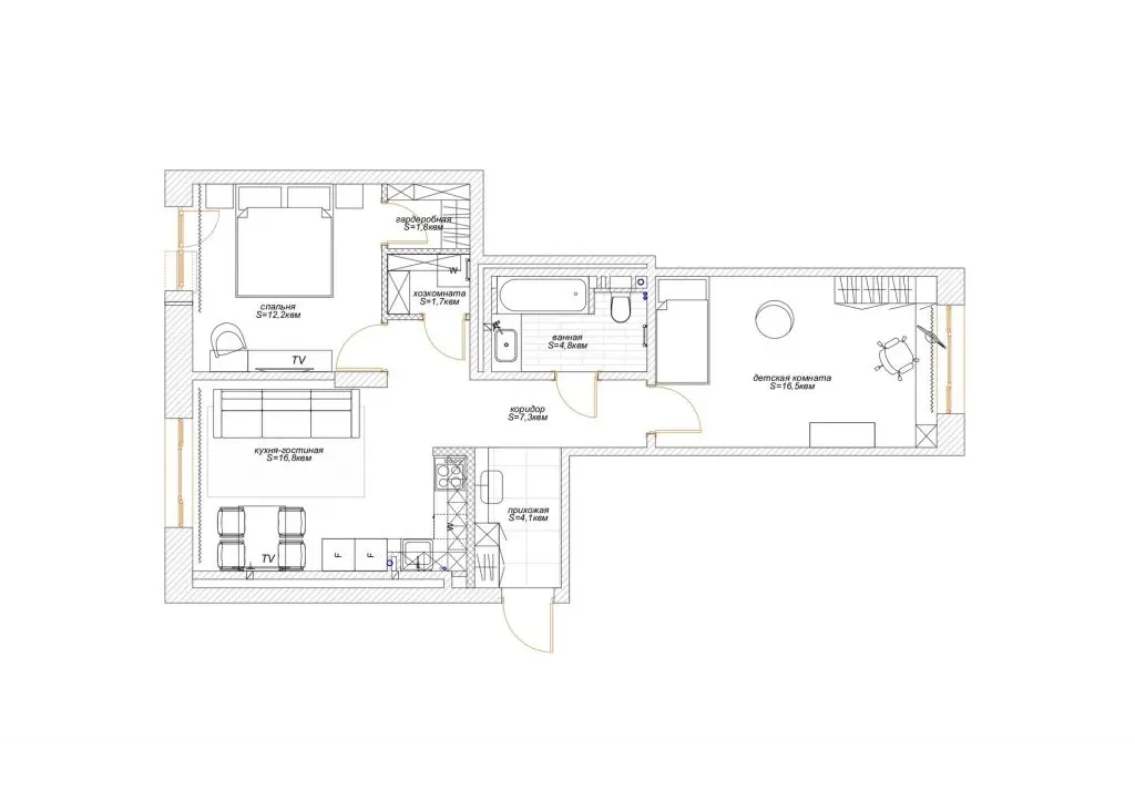
Deschide GaleriaIn 65 de metri patrati au reusit sa creeze o compartimentare confortabila, luand in calcul ergonomia si stilul de viata al membrilor familiei, exploatand la maxim fiecare centimetru disponibil.
Beneficiarii, un cuplu tanar cu un copil mic visau la mai mult spatiu in apartamentul de doua camere si o mai buna organizare a depozitarilor.
In urma compartimentarii propuse de designerul la care au apelat, Polina Marchenko, spatiul dormitorului a fost redus pentru a face loc unui dressing inchis, cu acces din dormitor si unei mici camere de depozitare, cu acces din hol.
Bucataria a fost marita si integrata intr-o zona comuna living-bucatarie-loc de luat masa. Desi pare compacta, bucataria este extrem de functionala.
A fost proiectata cu o atentia deosebita asupra fiecarui centimetru; pentru a profita la maxim de spatiul disponibil, toate corpurile suspendate au fost facute inalte, pana la limita plafonului de 2.60 metri.
Avand la dispozitie un buget limitat, au folosit putine decoratiuni. Ca accent in living au fost propuse panouri decorative tridimensionale, care creeaza iluzia optica aunui spatiu amplu. Camera copilului, cea mai ampla si luminoasa este pusa in valoare de tapetul vesel si nuante placute de violet. Patul supraetajat a fost realizat chiar de tatal micutei.
In privinta paletei cromatice, designerul ne povesteste ca totul a pornit de la nuanta de galben-mustar a canapelei.
“Galbenul-mustar a aparut intr-una dintre primele propuneri stilistice la inceputul proceului de design si cumva, toata lumea s-a indragostit imediat de acesta.”
Mai apoi, intregul concept cromatic s-a conturat in jurul acestei culori. Pentru a o pune in valoare, a fost contrastata de nuanta de albastru propusa pentru peretele din living. Restul mobilierului a fost gandit in nuante deschise, calde.
Inca de la inceput, sugestia designerilor a fost crearea unui decor neutru, ca fundal optim pentru accentele puternice si curajoase de culori (canapeaua galbena din living si dulapurile suspendate din bucatarie, obiectele de decor colorate).
Accentul stilistic in amenajarea acestei locuinte a fost pus pe utilizarea petelor de culoare uni, fara a incarca spatiul cu multe texturi si modele.
Datorita atentiei acordate compartimentarii si a alegerilor cromatice facute, apartamentul pare aerisit si mai spatios; in acelasi timp asigura spatii suficiente de depozitare.
Designer: 3dstudio-nsk
Foto: Anastasia Rozonova



































