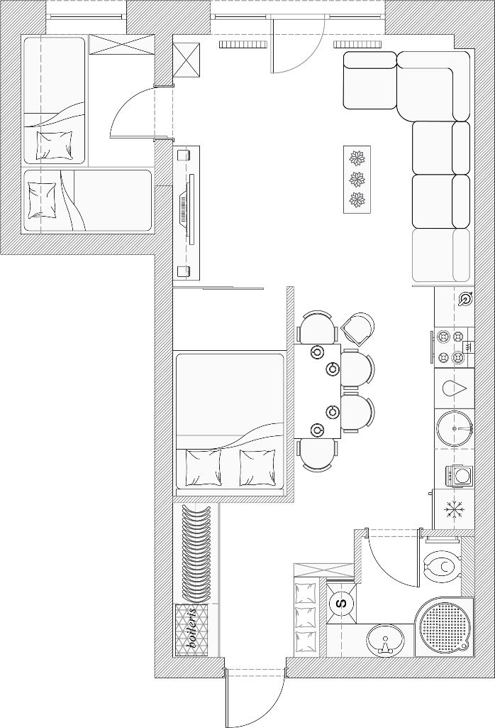
Pentru acest apartament de 48 metri patrati, beneficiarii au dorit o amenajare luminoasa si confortabila. Spatiul nu va fi locuit permanent, de aceea accentul a fost pus pe zonele comune si mai putin pe depozitare.
Intreaga amenajare a fost gandita cat mai minimal pentru a reusi integrarea armonioasa a functiunilor principale: livingul si bucataria. De altfel, cele doua zone formeaza un tot unitar armonios. Cromatica abordata pune accentul pe neutre, culori deschise care amplifica spatiul si ii sporesc luminozitatea. Accentele de culoare aduc un plus de veselie camerei.
Pentru bucatarie, dispunerea liniara, compacta s-a dovedit cea mai buna abordare. Electrocasnicele sunt incorporate pentru a spori caracterul unitar al amenajarii. S-au folosit fronturi lucioase, intr-o nuanta placuta de verde-oliv, iar blatul dintr-un compozit asemanator granitului completeaza paleta de culori. Spatiul dintre dulapuri este pus in evidenta printr-un imprimeu realizat pe comanda.
O partitie mica din sticla separa zona bucatariei de cea a livingului.
Canapeaua si corpul de biblioteca compun decorul simplu al livingului. Iluminatul joaca un rol important prin diferitele scenarii conturate la nivelul spatiului. Corpurile suspendate, veioza, lampadarul sau luminile de accent indreptate spre decoratiuni ofera amenajarii multiple beneficii. Draperiile aduc un plus decorului prin imprimeul cu motiv vegetal.
In acest spatiu exista doua dormitoare, unul mic destinat parintilor si unul pentru copii amenajat cu doua paturi. Dormitorul matrimonial este practic o incapere ingusta, in care patul este piesa principala si singura de altfel. Pentru camera copiilor s-a reluat tematica imprimeului floral din zona bucatariei, cu spatii mici de depozitare si paturi dispuse perpendicular.
Cuvantul de baza pentru baie este functionalitatea, cu zone de depozitare, inclusiv pentru masina de spalat rufe.
Design:Eliza Subert



















