Acest cuplu a visat mult la un camin al lor. Dupa ce au vazut apartamentul, au stiut ca va fi al lor. L-au achizitionat, dar s-au impotmolit la partea de amenajare. Cum sa pui in valoare 56 de metri patrati? N-au stat foarte mult pe ganduri si au apelat la ajutorul designerilor pentru a-i sfatui. Dintr-o simpla consultanta, au decis sa mearga mai departe cu echipa lor si sa implementeze proiectul gandit de cei de la 2artstudio.
Deschide GaleriaZona de zi
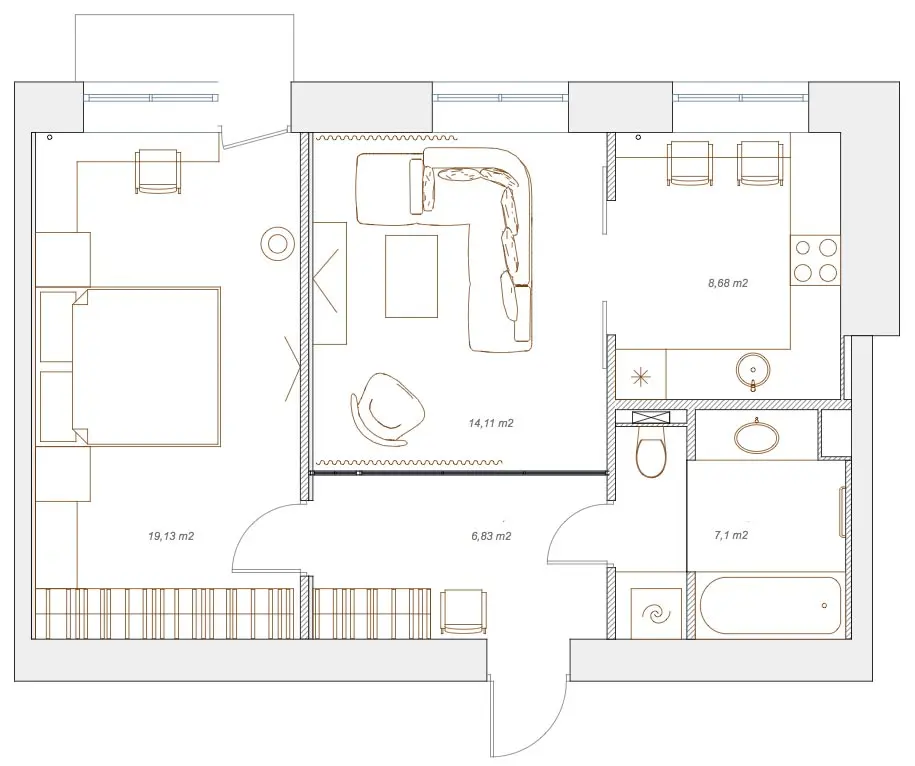
Cei doi si-au dorit un spatiu cu un design actual, inspirat de interioarele tip loft. Desi le placea ideea de bucatarie deschisa, pentru apartamentul lor si-au dorit totusi sa gaseasca o solutie pentru ca mirosurile sa nu patrunda in restul casei. In acelasi timp, au dorit ca spatiile sa ramana luminoase. Solutia propusa de designer? Un glasvand care sa nu obtureze lumina naturala si astfel intreg spatiul de zi sa fie mai aerisit, mai luminos.
Pentru a reda ideea de loft, au preluat barele de metal din compozitia glasvandului si le-au replicat la nivelul mobilierului. Astfel, biblioteca este compusa din rafturi deschise cu cadru metalic negru, iar restul pieselor, precum masuta de cafea, oglinda sau corpurile de iluminat includ si ele acest detaliu. In plus, textura de caramida aparenta pe care o regasim atat in living cat si in bucatarie sprijina tematica dezvoltata.
Bucataria
In hol, vom regasi o parte din spatiile de depozitare sub forma unor dulapuri cu fatete din oglinzi. Efectul este acelasi de largire si amplificare a spatiului.
Dormitorul si baia
Tip loft este si baia. Aici s-au folosit pentru pardoseala placi ceramice care imita parchetul, iar pe perete, placi care imita piatra naturala. Partitia din sticla ce separa cada si impiedica stropirea, oglinda, radiatorul sau bateria lavoarului precum si corpurile de iluminat redau excelent aspectul de loft, usor industrial.
Excelent gandit tot acest apartament de doua camere! Speram sa te inspire si pe tine in amenajare!





































