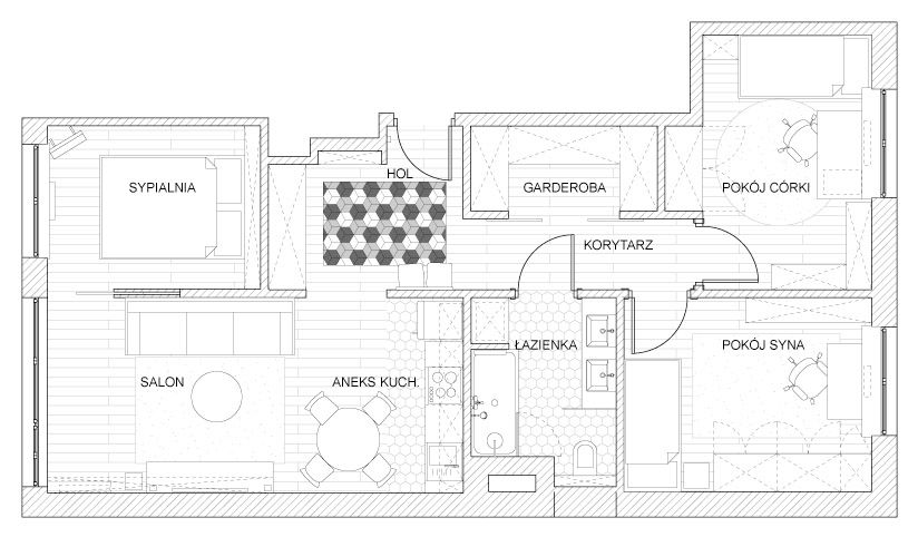
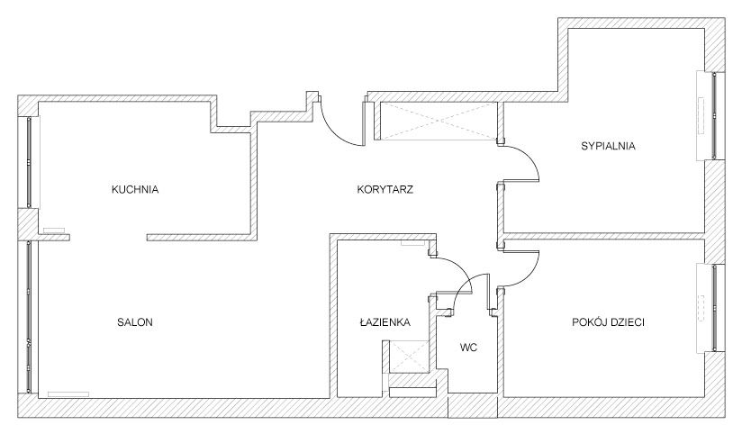
Uneori, nevoia de spatiu te poate duce spre transformari radicale. Pentru aceasta familie cu doi copii acest lucru a insemnat mutarea bucatariei si crearea unui nou dormitor, cel matrimonial, iar copiii sa aiba astfel fiecare spatiul propriu.
Deschide GaleriaLocuinta despre care vorbim are 75 metri patrati si se afla in Polonia. Pentru a duce la bun sfarsit acest proiect de reamenajare, beneficiarii au apelat la ajutorul designerilor de laBoho Studio, care i-au ghidat si sfatuit in privinta detaliilor tehnice referitoare la recompartimentari si redistribuire a spatiului de locuit.
Practic, toate functiunile din apartament au suferit modificari, cea mai semnificativa fiind mutarea bucatariei in spatiul livingului. Apoi, baia a fost largita pentru a o face accesibila tuturor, iar usile de acces in cele doua dormitoare ale copiilor modificate si ele in urma schimbarilor din baie.
Un alt detaliu important a fost crearea de spatii de depozitare eficiente. Astfel, pe langa dulapurile din dormitoare, a fost conturata o zona de dressing in perimetrul holului si inca un dulap chiar langa usa de la intrare.
Amenajarea s-a dorit a fi cat mai functional posibila, cu un design modern. Mobilarea este sumara, cu accent pe detaliile de baza. S-au folosit culori deschise, neutre, insertii de lemn pentru a pastra spatiile cat mai luminoase si aerisite. Accentele cromatice sunt discrete si alaturi de imprimeuri reusesc sa ofere un aer dinamic, vesel intregii amenajari.
In zona de zi se pune accentul pe spatiile comune, unde familia se reuneste si petrece timp impreuna. Practic, in acelasi perimetru se gateste, se ia masa sau se poate privi la televizor. Amenajarea minimala lasa spatiul sa respire, fara a fi agresat de piese de mobilier. Canapeaua, comoda de sub TV, cele doua etajere si masuta de cafea compun zona de living.
Locul de luat masa face trecerea inspre bucatarie.
Pentru a asigura o utilizare optima, designerii au mizat pe o amenajare compacta, liniara, cu toate electrocasnicele incorporate. Dispunerea pe doua niveluri ale dulapurilor superioare asigura un plus de depozitare. Practic, spatiul a fost folosit pe verticala, maximizand perimetrul disponibil.
Contrastul intre alb si gri inchis creeaza un plus de interes; la acest detaliu se adauga si portiunea de pardoseala placata cu placi decorative tridimensionale.
Dormitorul matrimonial este destul de minimal redat, tinand cont de faptul ca inainte de reconversie, aici, se afla bucataria. Si pentru celelalte doua dormitoare s-a urmarit aceeasi linie minimalista, cu modele de tapet care contureaza zone de accent si piese cu design jucaus potrivite pentru camere de copii.





Inainte
Dupa










