Pentru amenajarea acestui apartament de 65 metri patrati, designerul a propus o abordare centrata pe a obtine cat mai multa functionalitate din fiecare zona in parte.
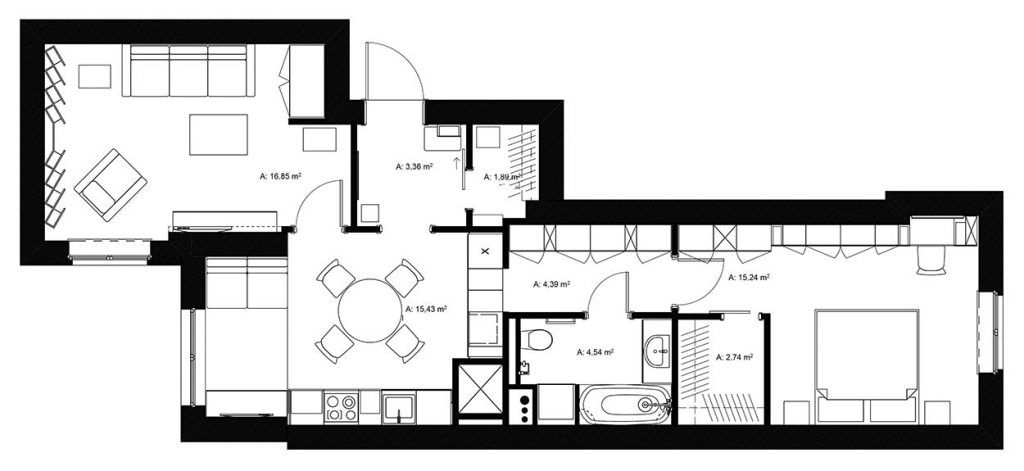
Spatiul este configurat ca unul de doua camere, dispunerea lunga si relativ ingusta fiind partea care a ridicat gradul de dificultate a proiectului. Dar sa-l privim mai in detaliu.
Bucataria este functiunea-cheie in acest apartament. Din ea se face accesul spre living si prin ea se trece in holul secundar spre zona de noapte, cu dormitorul, baia si zonele destinate depozitarii. Solutiile propuse de designer pentru optimizarea amenajarii sunt pe cat de surprinzatoare pe atat de eficiente.
Apartamentul primeste foarte putina lumina naturala; exista doar trei ferestre pe care designerul le-a exploatat cat de mult posibil. Pentru a compensa lipsa ferestrelor, a optat pentru tonuri deschise, calde si pe un iluminat artificial cat mai eficient pentru fiecare functiune in parte.
Existand doar o fereastra in spatiul bucatariei, iar crearea unui open space cu livingul era imposibila, accentul a fost pus pe deschiderea bucatariei atat spre holul de la intrare, cat si spre cel secundar.
Dispunerea de doua laturi a fost necesara pentru a asigura spatiile de depozitare necesare, dar si loc suficient pentru gatit. Astfel, mobilierul este dispus simetric de o parte si cealalta a zonei de acces spre holul secundar.
Spatiul bucatariei pare mai degraba o zona de zi prin includerea unui mic loc TV, cu o sofa si rafturi deschise care sporesc depozitarea. Tot aici se afla si zona de luat masa, dispusa central.
Desi nu exista suficienta lumina naturala, designerul nu s-a ferit de culori si imprimeuri. Astfel, a reusit sa aduca un plus de veselie si dinamism fiecarei zone in parte. Baza predominanta o constituie albul si tonurile neutre de la nivelul pardoselii si intr-o mare masura a mobilierului. Privita in ansamblu, amenajarea pare astfel echilibrata.
Pentru living, albastrul s-a dorit a fi culoarea vedeta. Este excelent redata la nivelul canapelei, fotoliului si al peretelui-accent. Stilistic, camera se contureaza intr-o linie moderna cu bun-gust redata. Biblioteca ascunsa este piesa de rezistenta si designul ei nu este deloc intamplator in contextul unei slabe iluminari. Mascand cartile, spatiul pare mai ordonat si aerisit.
O atentie sporita a fost acordata zonelor de depozitare. Practic, nici unei functiuni nu-i lipsesc dulapuri. Din holul de la intrare cu un dressing mic de pana in 2 mp, la dulapul din living si pana la corpurile amenajate in holul secundar si inclusiv in dormitor, acest apartament le asigura beneficiarilor spatii eficiente pentru a depozita haine, incaltaminte si alte lucruri mai voluminoase.
Sa nu omitem nici baia: deasupra masinii de spalat rufe au fost integrate dulapuri pentru produse de curatenie si detergenti.
Acest proiect reprezinta o sursa de inspiratie pentru toti care cauta idei pentru casa lor. Urmareste imaginile din galeria de mai sus unde vei gasi si schita apartamentului ca sa-ti faci o mai buna imagine despre configuratie si dimensiuni.
Proiect: Projector Studio













