Modernismul clasic sau clasicul adus armonios in contemporan. Acesta este povestea unui apartament de 60 mp amenajat intr-o zona exclusivista a Moscovei. Ingredientul secret si totodata, punctul de plecare al proiectului a constat in exploatarea planului liber existent, fara compartimentari interioare, care a permis o libertate totala in modelarea spatiului.
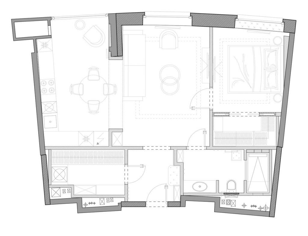
Deschide GaleriaDatorita lipsei de compartimentari structurale, a putut fi generata o compartimentare noua, pliata pe dorintele beneficiarului, pentru a raspunde cat mai bine cerintelor tehnice, ergonomice si estetice. Apartamentul este astfel compus dintr-o bucatarie spatioasa, livingroom, dormitor, dressing, o baie cu un dus spatios incastrat intr-o nisa in perete, holul de intrare, dressing secundar (cu acces din hol, care serveste si ca spalatorie).
Proprietarul acestui apartament este o doamna tanara, activa, care aloca mult timp vietii profesionale si calatoreste mult. Locuind toata viata in zona de sud-vest a Moscovei, cumpararea propriului apartament intr-o zona exclusivista a orasului a fost un vis devenit realitate. Inca de la inceput, cand a apelat la serviciile unui birou local de arhitectura, a stiut ca doreste o amenajare intr-un stil modern cu puternice influente clasice. Un element cheie catre succesul rezultatului final l-a constituit si disponibilitatea clientului de a experimenta cu culorile si a alege nuante puternice, curajoase. Poate fi observata culoarea smarald a tapetului din hol, albastrul intens al chenarului dintre living si bucatarie, faianta si mobilierul turquoise din baie. Toate acestea, echilibrate de un decor de fond cald, neutru din punct de vedere cromatic. Au fost folosiet nuante de bej, crem, roz prafuit, gri deschis.
Decizii referitoare la compartimentari
Profitand de absenta partitiilor structurale, designerul de interior Claudia Luchenko, impreuna cu beneficiarul, a decis sa nu separe zona de living de bucatarie, pentru a crea un spatiu amplu, in care diferitele zone comunica eficient. Rezultatul este un open-space unitar si comfortabil, pentru toate activitatile preferate ale clientului (zona de gatit, primire oaspeti, un fotoliu comod in bucatarie pentru citit seara si relaxare, un living primitor ).
Optiunea pentru traditionalul hol de intrare, lung, a fost respinsa inca din start; a fost aleasa, in schimb, impartirea spatiului intr-un hol de intrare de forma patrata, mai mic, rezultand un dressing aditional, spatios, in care este amplasata si masina de spalat rufe si totodata, au putut fi alocati zonei de living cativa metri patrati in plus. La nivel de compartimentare, logia din planul initial a fost inchisa si integrata in suprafata totala a apartamentului. Datorita acestei decizii, bucataria a devenit un spatiu generos si luminos, care beneficiaza de o fereastra panoramica ce contribuie la creionarea unei atmosfere calde, placuta.
Profilele ornamentale clasice utilizate la plafoanele si peretii din fiecare camera au rolul de a unifica stilistic spatiile si de a reda atmosfera unui stil clasic, elegant, fara a parea sobru. Peretele din dormitor a fost acoperit cu un tapet textil cu pattern clasic (de la Tifanny Designs) pentru a accentua si mai mult atmosfera dorita.
Elementul decorativ cheie
Un detaliu decorativ important, cu un impact puternic la prima vedere, este chenarul din mdf care delimiteaza bucataria de living. Chenarul a aparut in compartimentare din ratiuni tehnice, din dorinta de a masca unul din peretii logiei, structural, cu o grosime de 50 de centimetri, care nu era perpendicular pe peretii de compartimentare nou-creati. Astfel, peretele logiei a fost incorporat intr-un perete mai gros, perpendicular, cu o nisa de trecere intre bucatarie si living, o demarcare discreta a zonelor, din care a reiesit chenarul pe care il putem observa in imaginile alaturate. Acoperit cu profile clasice si vopsit intr-o nuanta de albastru intens, acesta apare ca un portal, o piesa-vedeta in amenajare.
Finisaje pardoseli
Pardoseala este din parchet stratificat din lemn de stejar, continua in toate spatiile, oprindu-se la linia chenarului albastru, bucataria avand ca finisaj de pardoseala placi de marmura portelanata care ii confera un aer luxos si calduros in acelasi timp.
Mobilierul
O mare parte din mobilier a fost aprobata de catre client inca din stadiul de randari, acesta implicandu-se direct in alegerea si achizitionarea mobilierului. Pentru amenajarea apartamentului nu a fost folosita nicio piesa de mobilier veche, totul fiind ales astfel incat sa se potriveasca perfect in conceptul si stilul propus. Clientul a venit cu propunerea de canapea semnata Albert & Stei, aleasa nu doar ca un element cu valente estetice cat si datorita ergonomiei sale. Integrata in livingul clasic, canapeaua poate fi privita ca un centru de gravitatie al open-spaceului, mai mult decat o piesa de mobilier. Pentru o eficientizare logistica, piesele de mobilier custom-made au fost realizate de un singur producator.
Stim ca povestea din spatele unei amenjari este mereu captivanta, insa imaginile sunt extrem de expresive asa ca va invitam sa urmariti cu atentie galeria foto si sa va lasati inspirati!
Designer: Claudia Luchenko
Foto: Mikhail Loskutov
Stilist: Nadezhda Boreiko
Proiect realizat in cadrul companiei Balcon Studio
































