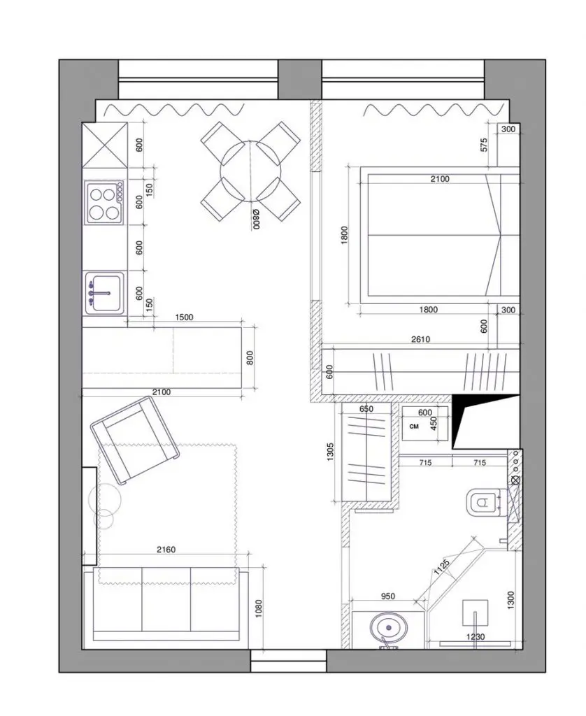
Studioul de doar 40 de metri patrati, era initial un spatiu delimitat doar perimetral de peretii structurali. Profitand de acest avantaj si luand in calcul stilul de viata activ al tanarului proprietar, arhitectii au propus o compartimentare extrem de functionala; au fost alocate spatii pentru bucatarie si living deschis, un dormitor, baie cu dus generos si ample spatii de depozitare.
Deschide GaleriaConceptul unei compartimentari eficiente
Prin folosirea usilor glisante intre zona de zi si dormitor se poate realiza o transformare usoara a studioului spatios intr-un apartament cu doua camere cu un dormitor inchis si zona de zi (living si bucatarie) pentru relaxare si primirea oaspetilor.
Astfel, a putut fi realizata o compartimentare extrem de utila, in acelasi timp, pastrand ideea unui spatiu deschis si generos, in limitele suprafetei disponibile.
In stadiul de proiect a fost sugerata amplasarea bucatariei si a dormitorului langa peretii cu ferestre, pentru a beneficia de lumina naturala, iar baia si livingul au fost amenajate in vecinatatea usii de intrare. Aceasta dispunere a generat un circuit natural si confortabil intre diversele zone ale locuintei.
Sistemele de depozitare au fost proiectate pentru a profita de fiecare centimetru al locuintei, mizand pe dulapuri incastrate si o compartimentare atent studiata a acestora.
A fost propus un dulap incastrat la intrare, un dulap generos in dormitor, cu nise decorative, si un dulap mascat in peretele din gips carton al vasului de toaleta, unde au fost amplasate masina de spalat rufe, uscatorul si rafturi pentru depozitarea solutiilor de curatenie.
O paleta cromatica cu povestea proprie
Alegerea paletei cromatice nu este deloc intamplatoare; proiectantii au tinut cont de stilul de viata al proprietarului, dorind sa creeze o atmosfera moderna, plina de prospetime.
Arhitectul marturiseste ca s-a lasat inspirat de o calatorie pe tarmurile Portugaliei, unde varietatea de nuante ale nisipului si pietrelor plus combinatia de albastru al oceanului intr-o zi insorita emana prospetime si o apropiere benefica de natura.
Finisaje atent selectate si puse in opera
Pardoseala din living este din gresie portelanata, format 3060 centimetri , cu textura de tesatura; aceeasi textura si culoare o regasim la pardoseala bucatariei, in format de mozaic hexagonal. Aceasta optiune are avantajul de a delimita si sublinia zona bucatariei fara o intrerupere vizuala a spatiului.
Inspiratia din natura o regasim si la pardoseala din dormitor, parchet stratificat din lemn de nuc american de la Coswik, in ton cu usile glisante si fetele de usi ale dulapurilor.
Pentru finisajele peretilor s-a optat pentru un fundal neutru, vopsea lavabila alba , marca Little Green; peretele pe care este amplasat patul fiind accentuat de un tapet textil crem cu o textura subtila. Optiunea placarii cu oglinzi a dulapului din dormitor amplifica vizual spatiul si impreuna cu lemnul de nuc confera eleganta incaperii.
Plafoanele albe au fost puse in valoare prin cornise decorative si scafe pentru accentuarea zonelor de interes si a corpurilor de iluminat cu ifluente clasice.
Urmariti galeria de fotografii care vorbesc de la sine despre eleganta si modernismul unui apartament mic dar extrem de functional!
Arhitecti: Brimmer Design
Foto: Anton Likhtarovich
































